Valutazione immobiliare indipendente, accurata e gratuita
L'Opinione di Caasa® per l'appartamento in vendita a Cantù in zona Vighizzolo a 170.000 € (cod.6595cae7)
Secondo Caasa, per l'appartamento in vendita a Cantù in zona Vighizzolo, la richiesta di 170.000 € è significativamente vantaggiosa rispetto agli annunci simili.
Analisi immobiliare
L'appartamento, situato vicino a Piazza Piave nella zona OMI C1, è proposto in vendita a
170.000 € per una
superficie commerciale di
90 m² e quindi ad un prezzo per metro quadrato pari a
1888 €/m²
.
Tale valore
è decisamente inferiore a quello stimato da Caasa per immobili in vendita simili per tipologia, caratteristiche, classe energetica e localizzati nella stessa zona OMI, che è compreso tra
2.424 €/m² e
2.621 €/m².
La conoscenza con buona approssimazione della localizzazione dell'immobile ha consentito di utilizzare come raffronto i dati medi elaborati esattamente nella zona OMI di appertenenza (SEMICENTRALE) per appartamenti (da 1.295 €/m² a 2.930 €/m²) e per trivani (da 1.300 €/m² a 2.875 €/m²). Inoltre, Caasa ha potuto affinare la stima anche con la conoscenza della classe energetica (B) oltre che dello stato dell'immobile (di nuova costruzione) e di alcune caratteristiche significative come il posto auto o la disponibilità di una cantina. Per i motivi esposti i valori accettabili per l'offerta costituiscono un intervallo abbastanza limitato.
Mercato immobiliare a Cantù
Per quanto riguarda più in generale la città di Cantù, sono presenti al momento oltre 500 annunci per
appartamenti in vendita (meno del 10% dell'intera provincia)
e il maggior numero di annunci per questa tipologia sono relativi proprio alla zona di Vighizzolo.
La richiesta media nella zona dove sorge l'appartamento (Vighizzolo pressi Piazza Piave) è pari a
1.975 €/m² che la rende la più economica della città .
La dinamica dei prezzi in tutta la città mostra che negli ultimi 6 mesi, i prezzi per appartamenti in vendita sono
in forte aumento (+13,31%).
NOVITÀ Il risultato che vedi dipende dai dati che siamo riusciti ad estrarre dall'annuncio: ottieni una stima più accuranta di questo immobile, inserendo dati più precisi.
N.B. L'Opinione di Caasa® è un servizio sperimentale realizzato tramite tecniche di Intelligenza Artificiale, fornito senza alcuna garanzia di correttezza e completezza. Leggi il disclaimer o segnalaci un problema.
IMMAGINI
IN SINTESI
PROPOSTO DA:
STUDIO CANTU' SRL
DESCRIZIONE
di nuova costruzione con posto auto con terrazza con termocondizionamento con balcone di nuova costruzione con cantina di recente ristrutturazione con cucina abitabile
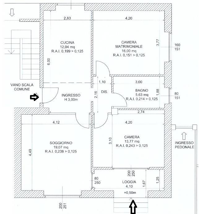
Cantu': nel cuore della piazza Piave, proponiamo in palazzina di sole sei unità abitative, appartamento in fase di completa ristrutturazione interna posto al piano rialzato composto da tre locali di 90 mq con ingresso, cucina abitabile, accogliente soggiorno, camera matrimoniale, disimpegno, cameretta con balcone e secondo ingresso, bagno padronale. Riscaldamento a pavimento Completa la soluzione lo spazioso box di 25 mq, un posto auto , la cantina di circa 15 m. IN FASE DI COMPLETA RISTRUTTURAZIONE Consegna giugno 2026


