Valutazione immobiliare indipendente, accurata e gratuita
Casa indipendente in vendita a Bregnano a 495.000 € (cod.6558caaa)
Caasa non ha sufficienti informazioni per commentare la casa indipendente in vendita a Bregnano - 6558caaa.
Analisi immobiliare
I dati in posseso di Caasa per quest'immobile sono insufficienti, inaffidabili o contraddittori per proporre un'analisi attendibile.
Mercato immobiliare a Bregnano
Per quanto riguarda più in generale il comune di Bregnano, sono presenti al momento circa cento annunci per
case indipendenti in vendita (meno del 5% dell'intera provincia)
e il maggior numero di annunci per questa tipologia sono relativi alla zona di San Giorgio.
Possiamo inoltre considerare che in tutto il comune negli ultimi 6 mesi, i prezzi per case indipendenti in vendita sono
in calo (-4,30%).
NOVITÀ Il risultato che vedi dipende dai dati che siamo riusciti ad estrarre dall'annuncio: ottieni una stima più accuranta di questo immobile, inserendo dati più precisi.
N.B. L'Opinione di Caasa® è un servizio sperimentale realizzato tramite tecniche di Intelligenza Artificiale, fornito senza alcuna garanzia di correttezza e completezza. Leggi il disclaimer o segnalaci un problema.
IMMAGINI
IN SINTESI
PROPOSTO DA:
CENTRO CASA IMMOBILIARE CANTURINA DI BIDOGGIA MONICA
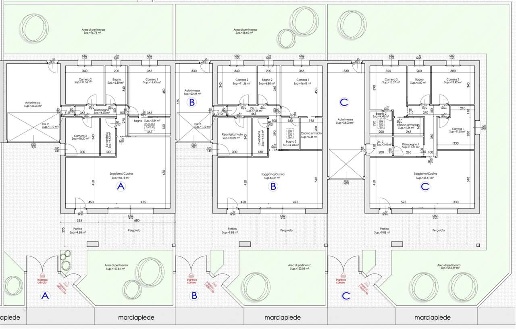
DESCRIZIONE
di nuova costruzione di nuova costruzione con termocondizionamento
Sono arricchite da ampi giardini privati, ideali per godersi momenti di relax all'aria aperta, e da un box doppio che offre comodi spazi di parcheggio. Le finiture di alto livello, tra cui un sistema di riscaldamento a pavimento con una pompa di calo […]
