Valutazione immobiliare indipendente, accurata e gratuita
Appartamento in vendita a Toscolano-Maderno (cod.652fd8da)
Caasa non ha sufficienti informazioni per commentare l'appartamento in vendita a Toscolano-Maderno - 652fd8da.
Analisi immobiliare
I dati in posseso di Caasa per quest'immobile sono insufficienti, inaffidabili o contraddittori per proporre un'analisi attendibile.
Mercato immobiliare a Toscolano-Maderno
Per quanto riguarda più in generale il comune di Toscolano-Maderno, sono presenti al momento oltre 500 annunci per
appartamenti in vendita (meno del 5% dell'intera provincia)
e il maggior numero di annunci per questa tipologia sono relativi alla zona di Maderno.
Possiamo inoltre considerare che in tutto il comune negli ultimi 6 mesi, i prezzi per appartamenti in vendita sono
in forte calo (-17,71%).
NOVITÀ Il risultato che vedi dipende dai dati che siamo riusciti ad estrarre dall'annuncio: ottieni una stima più accuranta di questo immobile, inserendo dati più precisi.
N.B. L'Opinione di Caasa® è un servizio sperimentale realizzato tramite tecniche di Intelligenza Artificiale, fornito senza alcuna garanzia di correttezza e completezza. Leggi il disclaimer o segnalaci un problema.
IMMAGINI
IN SINTESI
PROPOSTO DA:
venturoli&partners-di-venturoli-riccardo
DESCRIZIONE
di nuova costruzione con posto auto con terrazza con giardino di nuova costruzione con termocondizionamento con angolo cottura con riscaldamento autonomo con ascensore
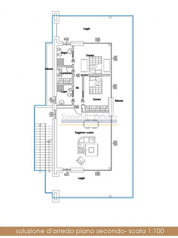
A Toscolano Maderno, in zona collinare e comoda ai servizi e alle spiagge attico con vista lago spettacolare inserito in un prestigioso piccolo complesso di sole cinque unità abitative. L'Attico si trova all'ultimo piano ed e' servito da ascensore. E' composto da ampia zona living che grazie a grandi vetrate scorrevoli si estende all'esterno sulla loggia con vista sulla piscina e sul lago. Nella zona notte troviamo la camera padronale dotata di bagno e guardaroba, e una seconda camera matrimoniale con bagno. All'ultimo piano con totale vista lago ampio solarium di 185 mq con zona jacuzzi e area relax. Completa la proprietà box auto. La casa è progettata per dare la massima efficienza energetica classe A4 e comfort. L'edificio è all'interno di un'area esclusiva di 3.000 mq che ospita una bellissima piscina a sfioro e un parco curato con vista lago straordinaria. Tempi di consegna estate 2024 - possibilità arredamento



