Valutazione immobiliare indipendente, accurata e gratuita
Capannone in affitto a Torbole Casaglia a 13.500 € mese (cod.651b8c4f)
Caasa non ha sufficienti informazioni per commentare il capannone in affitto a Torbole Casaglia - 651b8c4f.
Analisi immobiliare
I dati in posseso di Caasa per quest'immobile sono insufficienti, inaffidabili o contraddittori per proporre un'analisi attendibile.
Mercato immobiliare a Torbole Casaglia
Per quanto riguarda più in generale il comune di Torbole Casaglia, sono presenti al momento più di dieci annunci per
capannoni in affitto (meno del 5% dell'intera provincia) .
Vedi altre informazioni direttamente su
Mercato-Immobiliare.info
NOVITÀ Il risultato che vedi dipende dai dati che siamo riusciti ad estrarre dall'annuncio: ottieni una stima più accuranta di questo immobile, inserendo dati più precisi.
N.B. L'Opinione di Caasa® è un servizio sperimentale realizzato tramite tecniche di Intelligenza Artificiale, fornito senza alcuna garanzia di correttezza e completezza. Leggi il disclaimer o segnalaci un problema.
IMMAGINI
IN SINTESI
PROPOSTO DA:
Affiliato Tecnorete: INDUSTRIALE BS OVEST S.R.L.
LARGO ROMAGNOLI 13, Castegnato (BS)
DESCRIZIONE
di nuova costruzione di nuova costruzione
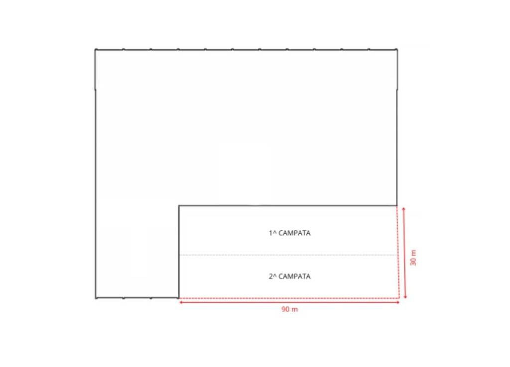
A Torbole Casaglia, proponiamo in affitto capannone di nuova costruzione con una superficie totale di 2.700 mq, suddiviso in due campate da circa 1.350mq l'una. Vi sono 2 cancelli carrai, posti sul confine del lotto, uno dei quali è in comune con un' unità confinante, entrambi comodi per l'accesso di mezzi di grandi dimensioni quali bilici. Il capannone verrà realizzato con altezza di circa 8 m interni e verranno installate mensole per il carroponte di portata 30 T e le relative vie di corsa. Il progetto è variabile a seconda di particolari esigenze del futuro inquilino (esempio creazione zona uffici, altezze differenti, eventuali baie di carico). La proprietà potrebbe valutare l'installazione del carroponte a sue spese. Il capannone ultimato verrà consegnato ad un anno dall'accordo con l'azienda costruttrice sul preliminare di affitto, con impianto elettrico base e luci. Il lotto è posizionato nella zona industriale di Torbole Casaglia, nelle immediate vicinanze della Corda Molle e vicino alle tangenziali verso Roncadelle e Brescia. CANONE SOGGETTO AD IVA


