Valutazione immobiliare indipendente, accurata e gratuita

Appartamento in vendita a Salò a 59.738 € (cod.64f3e516)

Caasa non ha sufficienti informazioni per commentare l'appartamento in vendita a Salò - 64f3e516.

Analisi immobiliare
I dati in posseso di Caasa per quest'immobile sono insufficienti, inaffidabili o contraddittori per proporre un'analisi attendibile.
Mercato immobiliare a Salò
Per quanto riguarda più in generale il comune di Salò, sono presenti al momento più di 200 annunci per appartamenti in vendita (meno del 5% dell'intera provincia) e il maggior numero di annunci per questa tipologia sono relativi alla zona di Barbarano.

Possiamo inoltre considerare che in tutto il comune negli ultimi 6 mesi, i prezzi per appartamenti in vendita sono in deciso aumento (+8,62%).

NOVITÀ Il risultato che vedi dipende dai dati che siamo riusciti ad estrarre dall'annuncio: ottieni una stima più accuranta di questo immobile, inserendo dati più precisi.

N.B. L'Opinione di Caasa® è un servizio sperimentale realizzato tramite tecniche di Intelligenza Artificiale, fornito senza alcuna garanzia di correttezza e completezza. Leggi il disclaimer o segnalaci un problema.

IMMAGINI

IN SINTESI

Prezzo:
59.738 €
Superficie:
41 m²
Prezzo al m²:
1457 €/m²
Piano:
Bagni:
1
Classe energetica:
n.d.
Città:
Salò (BS)
Indirizzo:
Pubblicato:
ven 26 settembre 2025

DESCRIZIONE

di recente ristrutturazione di recente ristrutturazione in asta giudiziaria

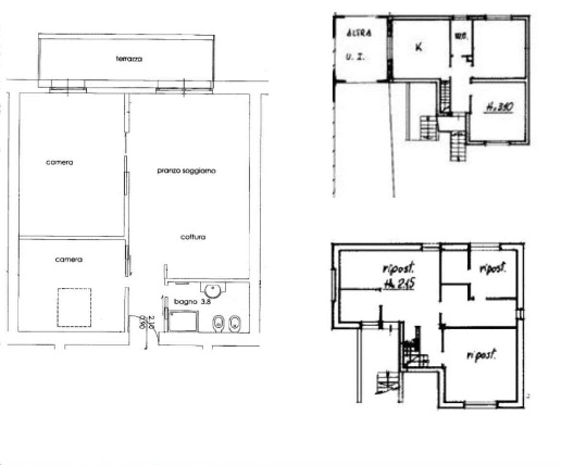
Appartamento al primo piano del condominio costituito da un atrio di ingresso, un bagno, un cucinino, un monolocale ad uso soggiorno-camera e una veranda chiusa. ASTE IMMOBILIARI: Per informazioni e visite immobiliari contattare il numero 030/6363111 […]

  • yescasa.it