Valutazione immobiliare indipendente, accurata e gratuita

Appartamento in vendita a Rodengo Saiano in zona Ponte Cingoli a 33.225 € (cod.64f3e5ae)

Caasa non ha sufficienti informazioni per commentare l'appartamento a Rodengo Saiano in zona Ponte Cingoli - 64f3e5ae.

Analisi immobiliare
I dati in posseso di Caasa per quest'immobile sono insufficienti, inaffidabili o contraddittori per proporre un'analisi attendibile.
Mercato immobiliare a Rodengo Saiano
Per quanto riguarda più in generale il comune di Rodengo Saiano, sono presenti al momento circa cento annunci per appartamenti in vendita (meno dell'1% dell'intera provincia) e il maggior numero di annunci per questa tipologia sono relativi proprio alla zona di Ponte Cingoli.
Per quanto riguarda la richiesta media in zona Ponte Cingoli, dove sorge l'appartamento, essa è pari a circa 2.480 €/m² per appartamenti in vendita.
Possiamo inoltre considerare che in tutto il comune negli ultimi 6 mesi, i prezzi per appartamenti in vendita sono in forte aumento (+13,45%).

NOVITÀ Il risultato che vedi dipende dai dati che siamo riusciti ad estrarre dall'annuncio: ottieni una stima più accuranta di questo immobile, inserendo dati più precisi.

N.B. L'Opinione di Caasa® è un servizio sperimentale realizzato tramite tecniche di Intelligenza Artificiale, fornito senza alcuna garanzia di correttezza e completezza. Leggi il disclaimer o segnalaci un problema.

IMMAGINI

IN SINTESI

Prezzo:
33.225 €
Superficie:
67 m²
Prezzo al m²:
495 €/m²
Piano:
terra
Bagni:
1
Classe energetica:
G
Città:
Rodengo Saiano (BS)
Zona OMI:
B1 (CENTRALE)
Indirizzo:
Pubblicato:
gio 17 luglio 2025

PROPOSTO DA:

Neovit s.r.l. Consulting

DESCRIZIONE

di recente ristrutturazione di recente ristrutturazione in asta giudiziaria

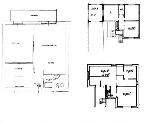
Piena proprietà di appartamento al piano terra ubicato in complesso residenziale, costituito da soggiorno, cucina, disbrigo, camera e bagno. ASTE IMMOBILIARI: Per informazioni e visite immobiliari contattare il numero 030/6363111. L'immobile viene venduto dal tribunale tramite asta giudiziaria e il prezzo indicato si riferisce all’offerta minima. Inoltre, per chi acquista come prima casa, sono previste ulteriori e vantaggiose agevolazioni. NEOVIT srl consulting è una società di consulenza che accompagna il cliente in tutto il percorso relativo all'acquisto tramite asta giudiziaria, abilitata anche nel ritiro dei crediti immobiliari. Contattaci per avere tutte le informazioni necessarie, i nostri consulenti sono a tua disposizione per accompagnarti dalla ricerca dell' immobile fino alla consegna delle chiavi, compreso l'eventuale assistenza per l'ottenimento di un mutuo. Il nostro staff è formato da professionisti del settore con competenze diverse, in grado di fornire una consulenza e assistenza a 360 gradi sia da un punto di vista tecnico-immobiliare legale. Il progetto NPL nasce nel nostro studio nel 2022 con l'intento ed al fine di massimizzare il recupero del credito deteriorato attraverso le chiusure stragiudiziali dei contenziosi o incentivando la partecipazione alle aste. L’acquisto di crediti NPL permette di: -di acquistare crediti con garanzia ipotecaria a un prezzo vantaggioso (anche al 50% in meno sull’importo di mercato) -riqualificare gli immobili acquistati con appositi interventi di ristrutturazione allo scopo di accrescerne il valore -ottenere un ritorno certo dai crediti deteriorati in tempi ragionevoli grazie alle diverse exit strategy La nostra prestazione non si configura come attività di intermediazione, in quanto persegue esclusivamente gli interessi del cliente e i nostri consulenti, legati da un codice deontologico, seguono l’operazione di acquisto al fine di concludere il miglior affare possibile

  • yescasa.it
  • trovacasa.net