Valutazione immobiliare indipendente, accurata e gratuita
Appartamento in vendita a Rezzato in zona Virle a 47.250 € (cod.64ff781b)
Caasa non ha sufficienti informazioni per commentare l'appartamento in vendita a Rezzato in zona Virle - 64ff781b.
Analisi immobiliare
I dati in posseso di Caasa per quest'immobile sono insufficienti, inaffidabili o contraddittori per proporre un'analisi attendibile.
Mercato immobiliare a Rezzato
Per quanto riguarda più in generale il comune di Rezzato, sono presenti al momento più di 150 annunci per
appartamenti in vendita (meno dell'1% dell'intera provincia)
e il maggior numero di annunci per questa tipologia sono relativi alla zona di San Giacomo, mentre nella zona di Virle è presente un numero significativamente inferiore di annunci.
Per quanto riguarda la richiesta media in zona Virle, dove sorge l'appartamento, essa è pari a circa
1.730 €/m² per appartamenti in vendita.
La dinamica dei prezzi in tutto il comune mostra che negli ultimi 6 mesi, i prezzi per appartamenti in vendita sono
in deciso aumento (+8,21%).
NOVITÀ Il risultato che vedi dipende dai dati che siamo riusciti ad estrarre dall'annuncio: ottieni una stima più accuranta di questo immobile, inserendo dati più precisi.
N.B. L'Opinione di Caasa® è un servizio sperimentale realizzato tramite tecniche di Intelligenza Artificiale, fornito senza alcuna garanzia di correttezza e completezza. Leggi il disclaimer o segnalaci un problema.
IMMAGINI
IN SINTESI
DESCRIZIONE
di recente costruzione con terrazza con cantina di recente ristrutturazione con balcone di recente costruzione con cortile in asta giudiziaria
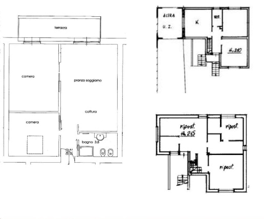
Piena proprietà di unità immobiliare facente parte di un complesso immobiliare a corte sito in Rezzato, frazione Virle, alla via XX Settembre n. 11. Trattasi di appartamento ad uso di civile abitazione a piano terra completo di due vani, bagno e disi […]
