Valutazione immobiliare indipendente, accurata e gratuita

Appartamento in vendita a Quinzano d'Oglio a 46.500 € (cod.64f21616)

Caasa non ha sufficienti informazioni per commentare l'appartamento in vendita a Quinzano d'Oglio - 64f21616.

Analisi immobiliare
I dati in posseso di Caasa per quest'immobile sono insufficienti, inaffidabili o contraddittori per proporre un'analisi attendibile.
Mercato immobiliare a Quinzano d'Oglio
Per quanto riguarda più in generale il comune di Quinzano d'Oglio, sono presenti al momento circa cento annunci per appartamenti in vendita (meno dell'1% dell'intera provincia) .

Possiamo inoltre considerare che in tutto il comune negli ultimi 6 mesi, i prezzi per appartamenti in vendita sono in forte calo (-15,12%).

NOVITÀ Il risultato che vedi dipende dai dati che siamo riusciti ad estrarre dall'annuncio: ottieni una stima più accuranta di questo immobile, inserendo dati più precisi.

N.B. L'Opinione di Caasa® è un servizio sperimentale realizzato tramite tecniche di Intelligenza Artificiale, fornito senza alcuna garanzia di correttezza e completezza. Leggi il disclaimer o segnalaci un problema.

IMMAGINI

IN SINTESI

Prezzo:
46.500 €
Superficie:
69 m²
Prezzo al m²:
673 €/m²
Piano:
Bagni:
1
Classe energetica:
n.d.
Città:
Quinzano d'Oglio (BS)
Zona OMI:
B1 (CENTRALE)
Indirizzo:
Pubblicato:
gio 16 ottobre 2025

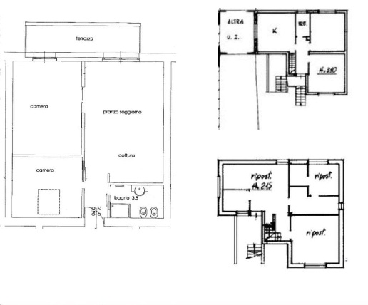
DESCRIZIONE

di recente ristrutturazione in asta giudiziaria con terrazza con balcone di recente ristrutturazione con angolo cottura

In Comune di Quinzano d’Oglio (BS), via Roma n. 47, piena proprietà di appartamento trilocale al primo piano di un edificio a corte, composto da atrio ingressivo, servizio igienico, soggiorno con angolo cottura, disimpegno e due camere, di cui una do […]

  • yescasa.it