Valutazione immobiliare indipendente, accurata e gratuita
L'Opinione di Caasa® per la casa indipendente in vendita a Puegnago del Garda a 640.000 € (cod.64ffebb7)
Secondo Caasa, per la casa indipendente in vendita a Puegnago del Garda, la richiesta di 640.000 € è significativamente svantaggiosa rispetto agli annunci simili.
Analisi immobiliare
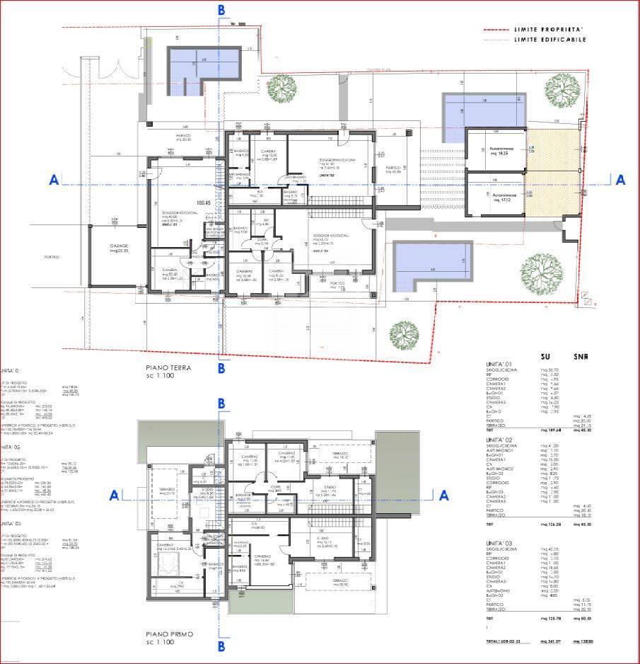
La casa indipendente, situata nella zona OMI D1, è proposta in vendita a
640.000 € per una
superficie commerciale di
170 m² e quindi ad un prezzo per metro quadrato pari a
3764 €/m²
.
Tale valore
è decisamente superiore a quello stimato da Caasa per immobili in vendita simili per tipologia e caratteristiche, presenti nella stessa zona, che è compreso tra
2.838 €/m² e
3.113 €/m².
Vista la posizione della casa indipendente sono stati utilizzati come raffronto i valori medi nelle zone limitrofe . Caasa non è stata in grado di determinare la classe energetica, ma ad affinare la stima hanno contribuito però anche lo stato dell'immobile (di nuova costruzione) e la presenza di alcune caratteristiche significative come la disponibilità di una cantina o il posto auto. Per i motivi esposti i valori possibili per l'offerta costituiscono un intervallo relativamente ampio.
Mercato immobiliare a Puegnago del Garda
Per quanto riguarda più in generale il comune di Puegnago del Garda, sono presenti al momento più di cento annunci per
case indipendenti in vendita (meno dell'1% dell'intera provincia) .
La dinamica dei prezzi in tutto il comune mostra che negli ultimi 6 mesi, i prezzi per case indipendenti in vendita sono
in leggera diminuzione (-3,15%).
NOVITÀ Il risultato che vedi dipende dai dati che siamo riusciti ad estrarre dall'annuncio: ottieni una stima più accuranta di questo immobile, inserendo dati più precisi.
N.B. L'Opinione di Caasa® è un servizio sperimentale realizzato tramite tecniche di Intelligenza Artificiale, fornito senza alcuna garanzia di correttezza e completezza. Leggi il disclaimer o segnalaci un problema.
IMMAGINI
IN SINTESI
PROPOSTO DA:
EDILFIN S.R.L.
DESCRIZIONE
di nuova costruzione con giardino con posto auto con terrazza con cantina di nuova costruzione
MT-001-277 Raffa di Puegnago Nuova, originale ed innovativa villa plurifamiliare, composta da tre unità ben divise e di ampia metratura, ognuna con piscina privata. Immobile di nuova costruzione, in classe energetica elevata, capitolato con finiture di alto livello con possibilità di scelta e personalizzazione delle finiture. La parte abitativa si sviluppa su due livelli. Al piano terra abbiamo il giardino privato con posto auto protetto da pergolato, piscina privata, ampio porticato, soggiorno con cucina a vista, bagno, una matrimoniale con bagno privato e cabina armadio. Al piano primo troviamo due camere da letto, un bagno, uno studio o volendo la quarta camera, ripostiglio, ampio terrazzo e vano tecnico. Ottima soluzione per chi cerca le 4 camere da letto. le fotografie si riferiscono ad una villa bifamiliare adiacente, realizzata dalla stessa impresa. La richiesta è di 640.000,00 euro per ogni singola unità. Possibilità di box con l'aggiunta di 40.000,00€ Annuncio a carattere informativo e commerciale: i dati riportati non hanno valore contrattuale e possono essere soggetti a modifiche



