Valutazione immobiliare indipendente, accurata e gratuita
Appartamento in vendita a Provaglio Val Sabbia in zona Mastanico a 33.698 € (cod.64f87cb8)
Caasa non ha sufficienti informazioni per commentare l'appartamento a Provaglio Val Sabbia Mastanico - 64f87cb8.
Analisi immobiliare
I dati in posseso di Caasa per quest'immobile sono insufficienti, inaffidabili o contraddittori per proporre un'analisi attendibile.
Mercato immobiliare a Provaglio Val Sabbia
Per quanto riguarda più in generale il comune di Provaglio Val Sabbia, sono presenti al momento più di dieci annunci per
appartamenti in vendita (meno dell'1% dell'intera provincia) .
NOVITÀ Il risultato che vedi dipende dai dati che siamo riusciti ad estrarre dall'annuncio: ottieni una stima più accuranta di questo immobile, inserendo dati più precisi.
N.B. L'Opinione di Caasa® è un servizio sperimentale realizzato tramite tecniche di Intelligenza Artificiale, fornito senza alcuna garanzia di correttezza e completezza. Leggi il disclaimer o segnalaci un problema.
IMMAGINI
IN SINTESI
PROPOSTO DA:
Neovit s.r.l. Consulting
DESCRIZIONE
di recente costruzione in asta giudiziaria con cantina con giardino di recente ristrutturazione di recente costruzione
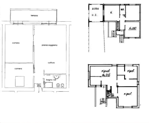
In Comune di Provaglio Val Sabbia (BS), frazione Mastanico, via dei Portici 13, piena proprietà di appartamento su tre piani con corte esclusiva pertinenziale. L’accesso all’unità in oggetto avviene dalla via dei Portici, con accesso al piano rialzato; dal terrazzo si accede in un disimpegno che da un lato conduce alla cucina e dall’altro alla veranda ed al soggiorno. Nel primo dei due locali si trova la scala per accedere al piano seminterrato; dal soggiorno invece parte la scala che conduce al piano sottotetto. Al piano seminterrato si trovano una camera ed un bagno. Entrambi i locali sono dotati di finestre che danno sul cavedio che separa il fabbricato dal terrapieno. Il piano sottotetto include due camere da letto e un bagno, oltre a locali di ampie dimensioni destinati a ripostiglio. L’appartamento è completato da una corte esclusiva, che comprende un giardino, una porzione pavimentata in ghiaietto per il posteggio delle auto ed un orto posto a quota di circa 2 m inferiore al piano stradale. ASTE IMMOBILIARI: Per informazioni e visite immobiliari contattare il numero 030/6363111. L'immobile viene venduto dal tribunale tramite asta giudiziaria e il prezzo indicato si riferisce all’offerta minima. Inoltre, per chi acquista come prima casa, sono previste ulteriori e vantaggiose agevolazioni. NEOVIT srl consulting è una società di consulenza che accompagna il cliente in tutto il percorso relativo all'acquisto tramite asta giudiziaria, abilitata anche nel ritiro dei crediti immobiliari. Contattaci per avere tutte le informazioni necessarie, i nostri consulenti sono a tua disposizione per accompagnarti dalla ricerca dell' immobile fino alla consegna delle chiavi, compreso l'eventuale assistenza per l'ottenimento di un mutuo. Il nostro staff è formato da professionisti del settore con competenze diverse, in grado di fornire una consulenza e assistenza a 360 gradi sia da un punto di vista tecnico-immobiliare legale. Il progetto NPL nasce nel nostro studio nel 2022 con l'intento ed al fine di massimizzare il[…]

