Valutazione immobiliare indipendente, accurata e gratuita
Appartamento in vendita a Ponte di Legno a 439.102 € (cod.6594558d)
Caasa non ha sufficienti informazioni per commentare l'appartamento in vendita a Ponte di Legno - 6594558d.
Analisi immobiliare
I dati in posseso di Caasa per quest'immobile sono insufficienti, inaffidabili o contraddittori per proporre un'analisi attendibile.
Mercato immobiliare a Ponte di Legno
Per quanto riguarda più in generale il comune di Ponte di Legno, sono presenti al momento più di 200 annunci per
appartamenti in vendita (meno del 5% dell'intera provincia)
e il maggior numero di annunci per questa tipologia sono relativi alla zona di Pezzo.
Relativamente alla dinamica dei prezzi, possiamo dire che negli ultimi 6 mesi i prezzi medi in tutto il comune per appartamenti in vendita sono
in forte aumento (+10,59%).
NOVITÀ Il risultato che vedi dipende dai dati che siamo riusciti ad estrarre dall'annuncio: ottieni una stima più accuranta di questo immobile, inserendo dati più precisi.
N.B. L'Opinione di Caasa® è un servizio sperimentale realizzato tramite tecniche di Intelligenza Artificiale, fornito senza alcuna garanzia di correttezza e completezza. Leggi il disclaimer o segnalaci un problema.
IMMAGINI
IN SINTESI
PROPOSTO DA:
affiliato mediocasa settore aste - nuova apertura - brescia (bs)
DESCRIZIONE
di nuova costruzione con terrazza di nuova costruzione con balcone con garage con giardino con cantina
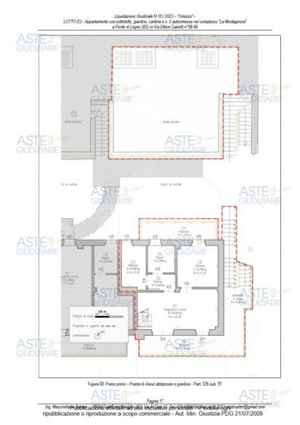
LOTTO E3 Piena proprietà. In Comune di PONTE DI LEGNO (BS) ? Via Ettore Calvelli, 56-58 Trattasi di appartamento posto al piano primo con sottotetto e giardino esclusivo oltre a cantina ed autorimessa al piano interrato. L?ingresso all?appartamento a […]
