Valutazione immobiliare indipendente, accurata e gratuita
L'Opinione di Caasa® per la casa indipendente in vendita a Polpenazze del Garda a 849.000 € (cod.656cd2dd)
Secondo Caasa, per la casa indipendente a Polpenazze del Garda, la richiesta di 849.000 € è significativamente vantaggiosa rispetto agli annunci simili.
Analisi immobiliare
La casa indipendente, situata nella zona OMI B1, è proposta in vendita a
849.000 € per una
superficie commerciale di
260 m² e quindi ad un prezzo per metro quadrato pari a
3265 €/m²
.
Tale prezzo
è più conveniente di quello stimato da Caasa per immobili in vendita simili per tipologia, caratteristiche, classe energetica e localizzati nella stessa zona OMI, che è compreso tra
4.150 €/m² e
4.425 €/m².
La conoscenza con buona approssimazione della localizzazione dell'immobile ha consentito di utilizzare come raffronto i dati medi elaborati esattamente nella zona OMI di appertenenza (CENTRALE RESIDENZIALE). Inoltre, Caasa ha potuto affinare la stima anche con la conoscenza della classe energetica (C) oltre che di alcune caratteristiche significative come il garage. In virtù di queste considerazioni i valori accettabili per l'offerta costituiscono un intervallo abbastanza limitato.
Mercato immobiliare a Polpenazze del Garda
Per quanto riguarda più in generale il comune di Polpenazze del Garda, sono presenti al momento più di 150 annunci per
case indipendenti in vendita (meno dell'1% dell'intera provincia)
e il maggior numero di annunci per questa tipologia sono relativi alla zona di Picedo.
Relativamente alla dinamica dei prezzi, possiamo dire che negli ultimi 6 mesi i prezzi medi in tutto il comune per case indipendenti in vendita sono
in sostanziale aumento (+5,12%).
NOVITÀ Il risultato che vedi dipende dai dati che siamo riusciti ad estrarre dall'annuncio: ottieni una stima più accuranta di questo immobile, inserendo dati più precisi.
N.B. L'Opinione di Caasa® è un servizio sperimentale realizzato tramite tecniche di Intelligenza Artificiale, fornito senza alcuna garanzia di correttezza e completezza. Leggi il disclaimer o segnalaci un problema.
IMMAGINI
IN SINTESI
DESCRIZIONE
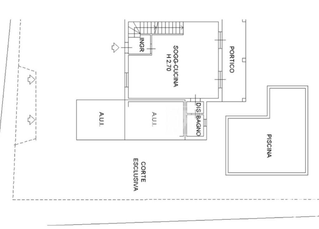
con giardino con posto auto con terrazza con garage con caminetto
Polpenazze Del Garda – villa vista lago. In una delle zone più panoramiche e residenziali di Polpenazze del Garda proponiamo in vendita un'elegante villa singola arredata, con splendida vista lago. In classe ottima classe energetica, è arricchita da piscina privata e da un giardino finemente piantumato con impianto di irrigazione automatica. La villa, di ampia metratura, si sviluppa su due piani più interrato e offre ambienti luminosi e raffinati: •Piano terra: accogliente soggiorno con camino, cucina a vista, bagno finestrato e portico coperto con vista lago. •Piano primo: camera padronale con bagno privato e vasca idromassaggio, loggia panoramica, seconda camera matrimoniale con terrazzo vista lago, camera singola e ulteriore bagno finestrato con doccia. •Piano interrato: ampia taverna con cucina attrezzata e camino, camera matrimoniale con bagno di generose dimensioni e lavanderia. Completa la proprietà un comodo garage doppio al piano terra con basculante elettrica. L'arredamento completo è incluso nel prezzo, rendendo questa residenza pronta per essere abitata e vissuta. Un rifugio ideale per chi desidera unire comfort, panorama mozzafiato e prestigio sulle sponde del Lago di Garda. – 137,65 Kw/m²a Le informazioni riportate sono corrette ma non costituiscono vincolo contrattuale. Contattateci senza impegno per ulteriori dettagli o per prenotare una visita a questa villa da sogno a Polpenazze del Garda

