Valutazione immobiliare indipendente, accurata e gratuita
Locale commerciale in vendita a Polaveno in zona San Giovanni a 1.100.000 € (cod.64e8896d)
Caasa non ha sufficienti informazioni per commentare il locale commerciale a Polaveno in zona San Giovanni - 64e8896d.
Analisi immobiliare
I dati in posseso di Caasa per quest'immobile sono insufficienti, inaffidabili o contraddittori per proporre un'analisi attendibile.
Mercato immobiliare a Polaveno
Per quanto riguarda più in generale il comune di Polaveno, sono presenti al momento meno di dieci annunci per
locali commerciali in vendita (meno dell'1% dell'intera provincia) .
Vedi altre informazioni direttamente su
Mercato-Immobiliare.info
NOVITÀ Il risultato che vedi dipende dai dati che siamo riusciti ad estrarre dall'annuncio: ottieni una stima più accuranta di questo immobile, inserendo dati più precisi.
N.B. L'Opinione di Caasa® è un servizio sperimentale realizzato tramite tecniche di Intelligenza Artificiale, fornito senza alcuna garanzia di correttezza e completezza. Leggi il disclaimer o segnalaci un problema.
IMMAGINI
IN SINTESI
DESCRIZIONE
di recente ristrutturazione con posto auto con garage di recente ristrutturazione con termocondizionamento
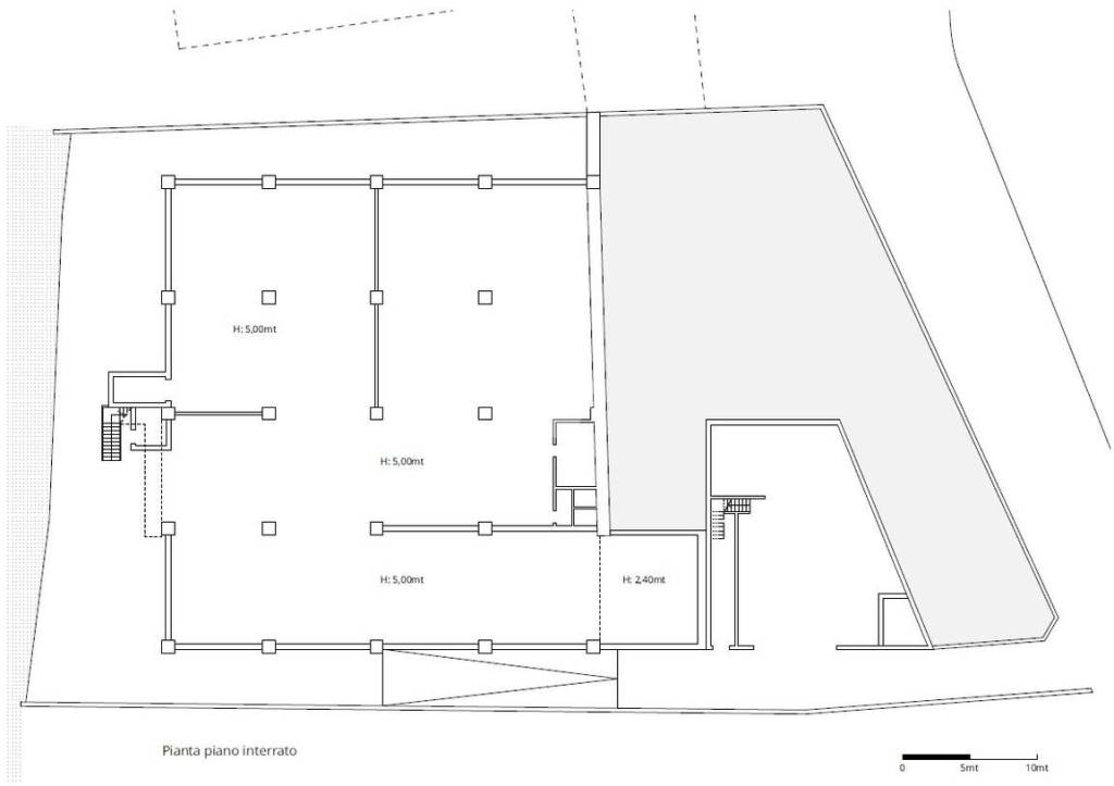
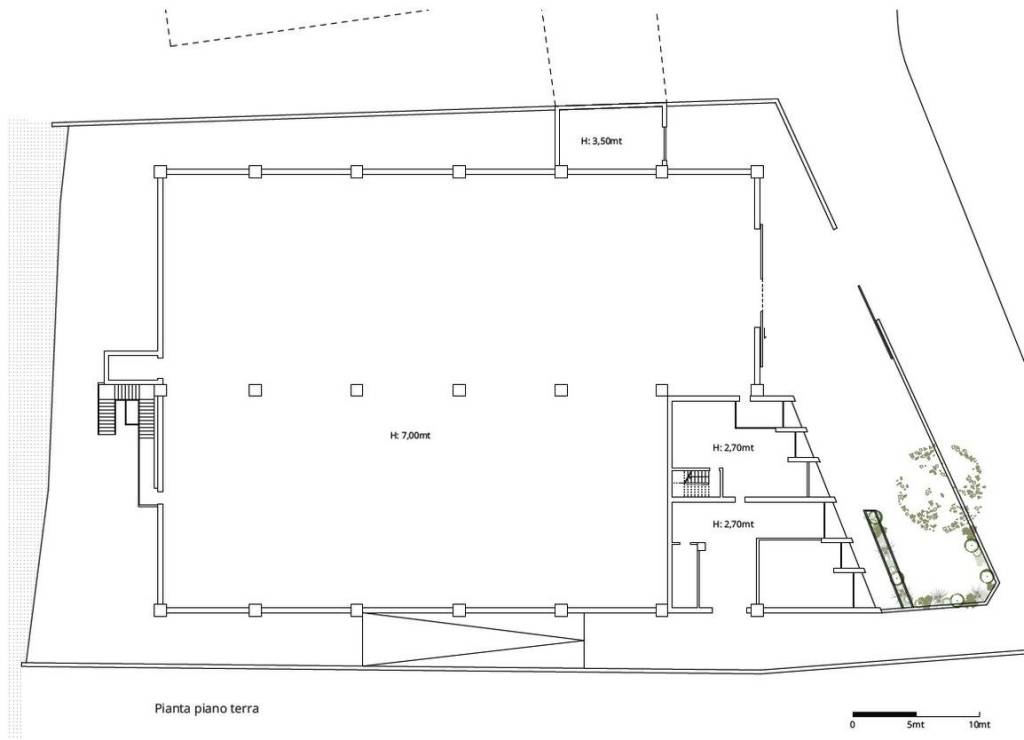
A Polaveno,nella Frazione San Giovanni proponiamo in vendita un capannone di 3.200 metri quadri, suddiviso in due piani: 1.760 metri quadri al piano terra e 1.440 metri quadri al piano seminterrato. I due capannoni hanno un'altezza pari a 7 mt sottotrave per il piano terra e 5 mt sottoterra, i due livelli sono collegati tramite montacarichi e scala di emergenza, l'accesso al piano seminterrato è possibile tramite una rampa. Accesso bilici. Nel prezzo di vendita sono compresi due appartamenti di 100 mq e 90 mq ,situati di fianco al capannone, con riscaldamento e raffrescamento autonomi. Gli impianti sono da verificare. A completare la proprietà, troviamo due garage situati nel piazzale di 1.500 mq. La soluzione comprende 200 mq di uffici, situati al piano terra sotto la palazzina residenziale,fronte strada ; come gli appartamenti, sono dotati di riscaldamento e raffrescamento autonomi, impianti da verificare. No spese condominiali. Un'opportunità interessante per chi cerca ampi spazi per attività industriali, ma con la comodità di avere anche abitazioni e uffici nella stessa proprietà. L'immobile è ideale per attività industriali o logistiche grazie agli ampi spazi e alla possibilità di installare un carroponte. Presente cabina elettrica di 12 mq con portata oltre i 100 kw. La soluzione verrà consegnata ristrutturata con tetto bonificato. Possibilità di frazionamento degli spazi per ottenere più soluzioni. Prezzo +IVA


