Valutazione immobiliare indipendente, accurata e gratuita
Appartamento in vendita a Pezzaze in zona Mondaro a 52.500 € (cod.65040e28)
Caasa non ha sufficienti informazioni per commentare l'appartamento in vendita a Pezzaze in zona Mondaro - 65040e28.
Analisi immobiliare
I dati in posseso di Caasa per quest'immobile sono insufficienti, inaffidabili o contraddittori per proporre un'analisi attendibile.
Mercato immobiliare a Pezzaze
Per quanto riguarda più in generale il comune di Pezzaze, sono presenti al momento più di venti annunci per
appartamenti in vendita (meno dell'1% dell'intera provincia) .
NOVITÀ Il risultato che vedi dipende dai dati che siamo riusciti ad estrarre dall'annuncio: ottieni una stima più accuranta di questo immobile, inserendo dati più precisi.
N.B. L'Opinione di Caasa® è un servizio sperimentale realizzato tramite tecniche di Intelligenza Artificiale, fornito senza alcuna garanzia di correttezza e completezza. Leggi il disclaimer o segnalaci un problema.
IMMAGINI
IN SINTESI
DESCRIZIONE
di recente costruzione con cantina in asta giudiziaria di recente ristrutturazione di recente costruzione con cucina abitabile
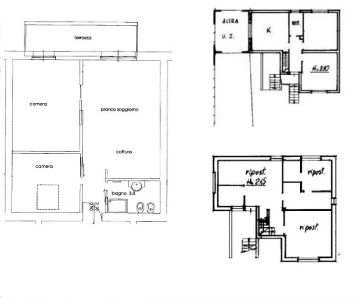
In Comune di Pezzaze (BS), frazione Mondaro, via Morina 2, appartamento pentalocale collocato in una porzione indipendente di fabbricato cielo terra. L’appartamento è disposto su tre livelli fuori terra, più un livello seminterrato destinato a locali […]
