Valutazione immobiliare indipendente, accurata e gratuita

Casa indipendente in vendita a Pavone del Mella a 28.688 € (cod.64f3e4d2)

Caasa non ha sufficienti informazioni per commentare la casa indipendente in vendita a Pavone del Mella - 64f3e4d2.

Analisi immobiliare
I dati in posseso di Caasa per quest'immobile sono insufficienti, inaffidabili o contraddittori per proporre un'analisi attendibile.
Mercato immobiliare a Pavone del Mella
Per quanto riguarda più in generale il comune di Pavone del Mella, sono presenti al momento più di venti annunci per case indipendenti in vendita (meno dell'1% dell'intera provincia) .

NOVITÀ Il risultato che vedi dipende dai dati che siamo riusciti ad estrarre dall'annuncio: ottieni una stima più accuranta di questo immobile, inserendo dati più precisi.

N.B. L'Opinione di Caasa® è un servizio sperimentale realizzato tramite tecniche di Intelligenza Artificiale, fornito senza alcuna garanzia di correttezza e completezza. Leggi il disclaimer o segnalaci un problema.

IMMAGINI

IN SINTESI

Prezzo:
28.688 €
Superficie:
180 m²
Prezzo al m²:
159 €/m²
Piano:
Bagni:
1
Classe energetica:
G
Città:
Pavone del Mella (BS)
Zona OMI:
B1 (CENTRALE)
Indirizzo:
Pubblicato:
lun 6 ottobre 2025

PROPOSTO DA:

Neovit s.r.l. Consulting

DESCRIZIONE

di recente ristrutturazione in asta giudiziaria di recente ristrutturazione

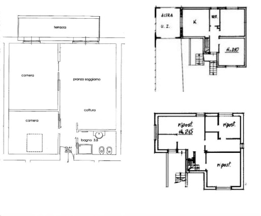
In Comune di PAVONE DEL MELLA (BS), Piazza Umberto I 22, piena proprietà di un’abitazione con portico e corte esclusiva. L'abitazione si sviluppa su due piani fuori terra con una soffitta nel piano sottotetto. Entrando si trova l'ingresso con il vano scale che disloca tre stanze adibite a cucina, soggiorno e servizio igienico; salendo al primo piano si trovano le tre camere da letto e proseguendo al piano superiore è presente un unico locale adibito a sottotetto. ASTE IMMOBILIARI: Per informazioni e visite immobiliari contattare il numero 030/6363111. L'immobile viene venduto dal tribunale tramite asta giudiziaria e il prezzo indicato si riferisce all’offerta minima. Inoltre, per chi acquista come prima casa, sono previste ulteriori e vantaggiose agevolazioni. NEOVIT srl consulting è una società di consulenza che accompagna il cliente in tutto il percorso relativo all'acquisto tramite asta giudiziaria, abilitata anche nel ritiro dei crediti immobiliari. Contattaci per avere tutte le informazioni necessarie, i nostri consulenti sono a tua disposizione per accompagnarti dalla ricerca dell' immobile fino alla consegna delle chiavi, compreso l'eventuale assistenza per l'ottenimento di un mutuo. Il nostro staff è formato da professionisti del settore con competenze diverse, in grado di fornire una consulenza e assistenza a 360 gradi sia da un punto di vista tecnico-immobiliare legale. Il progetto NPL nasce nel nostro studio nel 2022 con l'intento ed al fine di massimizzare il recupero del credito deteriorato attraverso le chiusure stragiudiziali dei contenziosi o incentivando la partecipazione alle aste. L’acquisto di crediti NPL permette di: -di acquistare crediti con garanzia ipotecaria a un prezzo vantaggioso (anche al 50% in meno sull’importo di mercato) -riqualificare gli immobili acquistati con appositi interventi di ristrutturazione allo scopo di accrescerne il valore -ottenere un ritorno certo dai crediti deteriorati in tempi ragionevoli grazie alle diverse exit strategy La nostra prestazione non si co[…]

  • yescasa.it
  • trovacasa.net