Valutazione immobiliare indipendente, accurata e gratuita
L'Opinione di Caasa® per l'appartamento in vendita ad Ospitaletto a 115.000 € (cod.64ec8972)
Secondo Caasa, per l'appartamento in vendita ad Ospitaletto, la richiesta di 115.000 € è leggermente svantaggiosa rispetto agli annunci simili.
Analisi immobiliare
L'appartamento, situato nella zona OMI B1, è proposto in vendita a
115.000 € per una
superficie commerciale di
59 m² e quindi ad un prezzo per metro quadrato pari a
1949 €/m²
.
Questo prezzo
è di poco superiore a quello stimato da Caasa per immobili in vendita simili per tipologia e caratteristiche e localizzati nella stessa zona OMI, che è compreso tra
1.755 €/m² e
1.897 €/m².
Grazie alla conoscenza con buona approssimazione della localizzazione dell'immobile, è stato possibile utilizzare come raffronto i dati medi elaborati esattamente nella zona OMI di appertenenza (CENTRALE). Anche se Caasa non è riuscita a determinare la classe energetica, ad affinare la stima ha contribuito anche lo stato dell'immobile (di recente costruzione). Per queste ragioni l'intervallo dei valori accettabili per l'offerta è relativamente limitato.
Mercato immobiliare ad Ospitaletto
Per quanto riguarda più in generale il comune di Ospitaletto, sono presenti al momento circa cento annunci per
appartamenti in vendita (meno dell'1% dell'intera provincia)
e il maggior numero di annunci per questa tipologia sono relativi alla zona di Centro Storico.
Possiamo inoltre considerare che in tutto il comune negli ultimi 6 mesi, i prezzi per appartamenti in vendita sono
in deciso aumento (+8,51%).
NOVITÀ Il risultato che vedi dipende dai dati che siamo riusciti ad estrarre dall'annuncio: ottieni una stima più accuranta di questo immobile, inserendo dati più precisi.
N.B. L'Opinione di Caasa® è un servizio sperimentale realizzato tramite tecniche di Intelligenza Artificiale, fornito senza alcuna garanzia di correttezza e completezza. Leggi il disclaimer o segnalaci un problema.
IMMAGINI
IN SINTESI
DESCRIZIONE
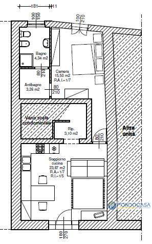
di recente costruzione con giardino con termocondizionamento di nuova costruzione di recente costruzione con riscaldamento autonomo
AAA AFFITTO CON RISCATTO !!!! Acconto di ? 15.000 il resto lo paghi a rate. Ad Ospitaletto a pochi passi dalla piazza e da tutti i principali servizi, proponiamo grazioso appartamento bilocale al piano terra inserito in contesto residenziale di recente costruzione. Soluzione comoda e funzionale per chi vuol vivere il centro del paese. Immobile come nuovo pronto per essere abitato. Ottima soluzione anche come investimento. Locazione sicura e garantita. -Per visite e info AGENZIA IMMOBILIARE FONDOCASA OSPITALETTO Via Domenico Ghidoni 46 - Ospitaletto. Tel. 030.6370611 - 345/8415204 -NOTA BENE: Alcuni dati descrittivi dell'immobile potrebbero essere solo approssimativi, esempio; spese di riscaldamento, spese condominiali, indirizzo, metrature, A. P. E. , pertanto verranno comunicate in modo completo telefonicamente o in fase di appuntamento, non costituendo elemento contrattuale. - SC9475016






