Valutazione immobiliare indipendente, accurata e gratuita
Appartamento in vendita a Nuvolera a 235.000 € (cod.6566f8de)
Caasa non ha sufficienti informazioni per commentare l'appartamento in vendita a Nuvolera - 6566f8de.
Analisi immobiliare
I dati in posseso di Caasa per quest'immobile sono insufficienti, inaffidabili o contraddittori per proporre un'analisi attendibile.
Mercato immobiliare a Nuvolera
Per quanto riguarda più in generale il comune di Nuvolera, sono presenti al momento più di trenta annunci per
appartamenti in vendita (meno dell'1% dell'intera provincia) .
Possiamo inoltre considerare che in tutto il comune negli ultimi 6 mesi, i prezzi per appartamenti in vendita sono
in forte calo (-23,14%).
NOVITÀ Il risultato che vedi dipende dai dati che siamo riusciti ad estrarre dall'annuncio: ottieni una stima più accuranta di questo immobile, inserendo dati più precisi.
N.B. L'Opinione di Caasa® è un servizio sperimentale realizzato tramite tecniche di Intelligenza Artificiale, fornito senza alcuna garanzia di correttezza e completezza. Leggi il disclaimer o segnalaci un problema.
IMMAGINI
IN SINTESI
DESCRIZIONE
di recente ristrutturazione con giardino di recente ristrutturazione con termocondizionamento senza ascensore
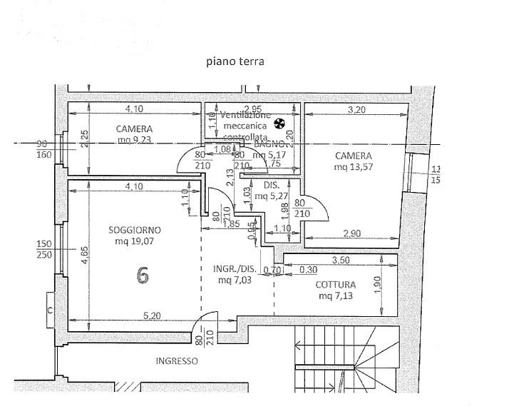
All'interno di una corte ristrutturata, sono DISPONIBILI 2 TRILOCALI di nuova riqualificazione con distribuzione funzionale e spazi ben organizzati. La composizione è così organizzata: zona giorno luminosa e funzionale con cucina a vista e nella zona notte troviamo un disimpegno che ci porta alle due camere da letto di generose dimensioni e al bagno finestrato. Le principali caratteristiche sono: -giardino privato -riscaldamento a pavimento -pompa di calore -impianto fotovoltaico -ventilazione meccanica controllata -ottimo isolamento termo-acustico La consegna è prevista tra 5 mesi. Le immagini sono solo a scopo illustrativo


