Valutazione immobiliare indipendente, accurata e gratuita
L'Opinione di Caasa® per l'appartamento in vendita a Nuvolera a 276.000 € (cod.6566f843)
Secondo Caasa, per l'appartamento in vendita a Nuvolera, la richiesta di 276.000 € è significativamente svantaggiosa rispetto agli annunci simili.
Analisi immobiliare
L'appartamento, situato nella zona OMI B1, è proposto in vendita a
276.000 € per una
superficie commerciale di
110 m² e quindi ad un prezzo per metro quadrato pari a
2509 €/m²
.
Tale valore
è decisamente superiore a quello stimato da Caasa per immobili in vendita simili per tipologia e caratteristiche, presenti nella stessa zona, che è compreso tra
1.838 €/m² e
2.047 €/m².
Vista la posizione dell'appartamento sono stati utilizzati come raffronto i valori medi nelle zone limitrofe . Caasa non è stata in grado di determinare la classe energetica, ma ad affinare la stima hanno contribuito però anche lo stato dell'immobile (di recente ristrutturazione) e la presenza di alcune caratteristiche significative come il posto auto. Per i motivi esposti i valori possibili per l'offerta costituiscono un intervallo relativamente ampio.
Mercato immobiliare a Nuvolera
Per quanto riguarda più in generale il comune di Nuvolera, sono presenti al momento più di trenta annunci per
appartamenti in vendita (meno dell'1% dell'intera provincia) .
La dinamica dei prezzi in tutto il comune mostra che negli ultimi 6 mesi, i prezzi per appartamenti in vendita sono
in forte calo (-23,14%).
NOVITÀ Il risultato che vedi dipende dai dati che siamo riusciti ad estrarre dall'annuncio: ottieni una stima più accuranta di questo immobile, inserendo dati più precisi.
N.B. L'Opinione di Caasa® è un servizio sperimentale realizzato tramite tecniche di Intelligenza Artificiale, fornito senza alcuna garanzia di correttezza e completezza. Leggi il disclaimer o segnalaci un problema.
IMMAGINI
IN SINTESI
DESCRIZIONE
di recente ristrutturazione con terrazza con giardino di nuova costruzione di recente ristrutturazione con termocondizionamento senza ascensore con riscaldamento autonomo
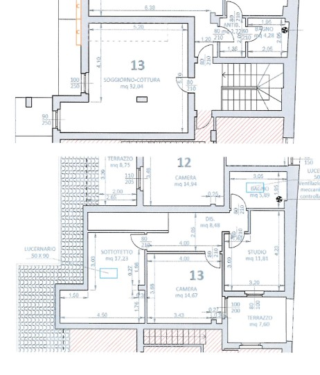
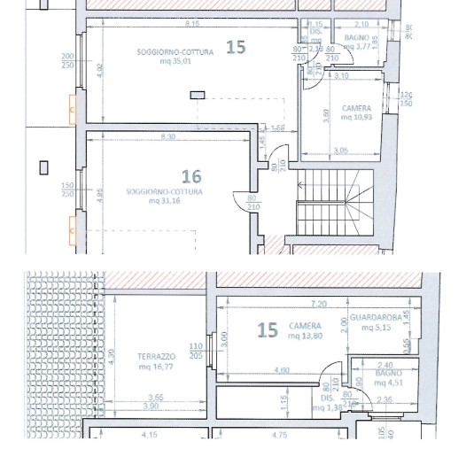
LA SOLUZIONE All'interno di una suggestiva corte dell'Ottocento, in un contesto residenziale completamente rinnovato, proponiamo 4 appartamenti di nuova riqualificazione, progettati per offrire ambienti funzionali, moderni e ben distribuiti. I quadrilocali si sviluppano su due piani e presentano diverse composizioni, studiate per soddisfare esigenze abitative differenti: Prima tipologia -Primo piano: soggiorno con cucina a vista, bagno e camere da letto -Piano superiore: due camere da letto, guardaroba e secondo bagno Seconda tipologia -Primo piano: soggiorno con cucina, disimpegno -Piano superiore: tre camere da letto e bagno Tutti i quadrilocali sono dotati di terrazzo privato, ideale per momenti di relax all'aperto. Dotazioni dell'immobile: -Riscaldamento a pavimento -Pompa di calore -Impianto fotovoltaico -Ventilazione meccanica controllata -Ottimo isolamento termo-acustico Gli appartamenti sono in costruzione con consegna prevista tra 5 mesi. Le immagini sono puramente illustrative

