Valutazione immobiliare indipendente, accurata e gratuita
Locale commerciale in vendita a Nave a 195.000 € (cod.638d5817)
Caasa non ha sufficienti informazioni per commentare il locale commerciale in vendita a Nave - 638d5817.
Analisi immobiliare
I dati in posseso di Caasa per quest'immobile sono insufficienti, inaffidabili o contraddittori per proporre un'analisi attendibile.
Mercato immobiliare a Nave
Per quanto riguarda più in generale il comune di Nave, sono presenti al momento più di dieci annunci per
locali commerciali in vendita (meno dell'1% dell'intera provincia) .
NOVITÀ Il risultato che vedi dipende dai dati che siamo riusciti ad estrarre dall'annuncio: ottieni una stima più accuranta di questo immobile, inserendo dati più precisi.
N.B. L'Opinione di Caasa® è un servizio sperimentale realizzato tramite tecniche di Intelligenza Artificiale, fornito senza alcuna garanzia di correttezza e completezza. Leggi il disclaimer o segnalaci un problema.
IMMAGINI
IN SINTESI
DESCRIZIONE
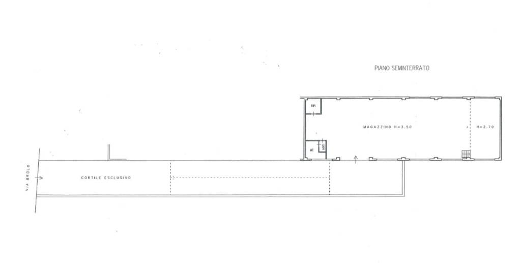
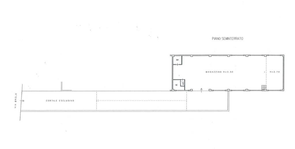
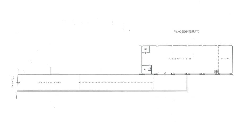
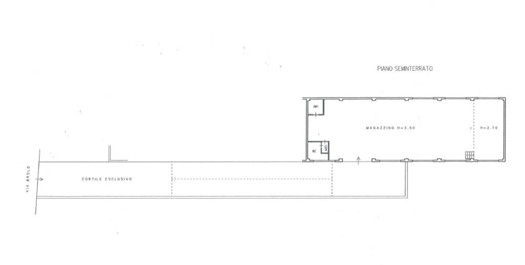
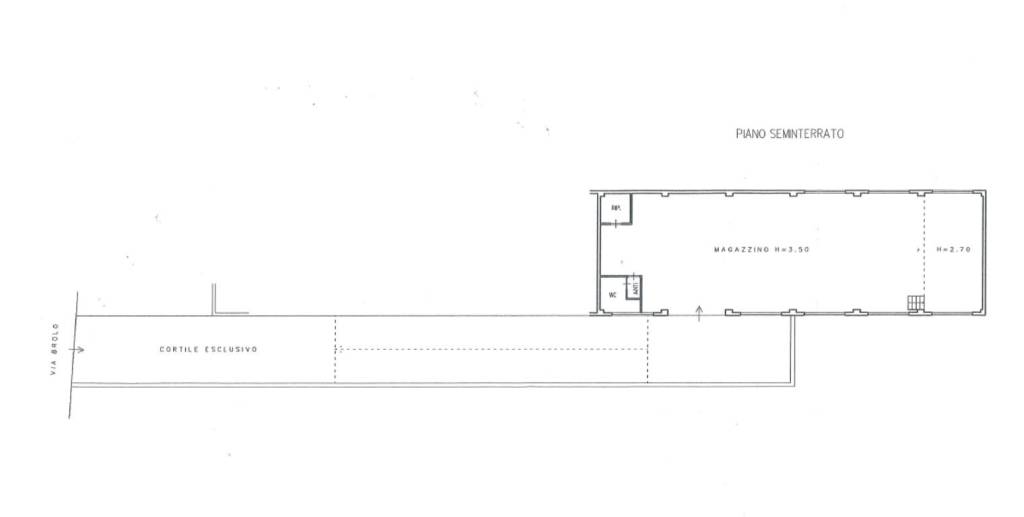
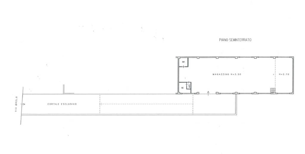
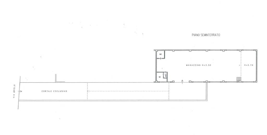
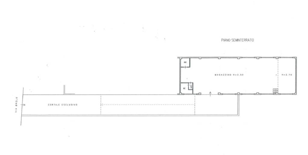
A Nave proponiamo in vendita capannone con una superficie totoale di circa 265mq.L'immobile è composto da un magazzino di 165mq ,una zona uffici e un servizio igienico + un'area esterna di circa 200mq. Il magazzino vanta un'altezza di circa 3,50mt. L'accesso alla soluzione è possibile tramite un ingresso pedonale e uno carraio. Gli impianti eletterico, idraulico e d'illuminazione sono funzionanti. L'immobile è dotato di un'ottima luminosità in quanto è tutto finestrato


