Valutazione immobiliare indipendente, accurata e gratuita
Appartamento in vendita a Montichiari in zona Novagli a 75.000 € (cod.64f7781a)
Caasa non ha sufficienti informazioni per commentare l'appartamento a Montichiari in zona Novagli - 64f7781a.
	Analisi immobiliare
	
	I dati in posseso di Caasa per quest'immobile sono insufficienti, inaffidabili o contraddittori per proporre un'analisi attendibile.
	
	Mercato immobiliare a Montichiari
	
	Per quanto riguarda più in generale la città di Montichiari, sono presenti al momento più di 200 annunci per 
		appartamenti in vendita (meno del 5% dell'intera provincia) 
	
	 e il maggior numero di annunci per questa tipologia sono relativi alla zona di Rò, mentre la zona di Novagli risulta molto meno attiva considerando il numero di annunci presenti.
	
	
	
	Possiamo inoltre considerare che in tutta la città negli ultimi 6 mesi, i prezzi per appartamenti in vendita sono 
		in leggero aumento (+3,08%).
	
	
	
NOVITÀ Il risultato che vedi dipende dai dati che siamo riusciti ad estrarre dall'annuncio: ottieni una stima più accuranta di questo immobile, inserendo dati più precisi.
N.B. L'Opinione di Caasa® è un servizio sperimentale realizzato tramite tecniche di Intelligenza Artificiale, fornito senza alcuna garanzia di correttezza e completezza. Leggi il disclaimer o segnalaci un problema.
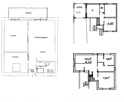
IMMAGINI
IN SINTESI
DESCRIZIONE
di recente ristrutturazione con garage con cantina in asta giudiziaria
In Comune di Montichiari (BS), frazione Novagli, via Novagli Campagna n. 12, unità abitativa con loggiato al secondo piano in condominio residenziale e autorimessa al piano interrato, composta da un soggiorno con zona cucina/cottura con attiguo ripos […]
 
                               
                               
                               
                               
                               
                               
                               
                               
                               
                               
                               
                               
                               
                               
                              