Valutazione immobiliare indipendente, accurata e gratuita
Appartamento in vendita a Lumezzane in zona San Sebastiano a 40.377 € (cod.64f77842)
Caasa non ha sufficienti informazioni per commentare l'appartamento a Lumezzane in zona San Sebastiano - 64f77842.
Analisi immobiliare
I dati in posseso di Caasa per quest'immobile sono insufficienti, inaffidabili o contraddittori per proporre un'analisi attendibile.
Mercato immobiliare a Lumezzane
Per quanto riguarda più in generale la città di Lumezzane, sono presenti al momento più di 200 annunci per
appartamenti in vendita (meno del 5% dell'intera provincia)
e il maggior numero di annunci per questa tipologia sono relativi proprio alla zona di San Sebastiano.
Per quanto riguarda la richiesta media in zona San Sebastiano, dove sorge l'appartamento, essa è pari a circa
1.080 €/m² per appartamenti in vendita.
Possiamo inoltre considerare che in tutta la città negli ultimi 6 mesi, i prezzi per appartamenti in vendita sono
in aumento (+3,37%).
NOVITÀ Il risultato che vedi dipende dai dati che siamo riusciti ad estrarre dall'annuncio: ottieni una stima più accuranta di questo immobile, inserendo dati più precisi.
N.B. L'Opinione di Caasa® è un servizio sperimentale realizzato tramite tecniche di Intelligenza Artificiale, fornito senza alcuna garanzia di correttezza e completezza. Leggi il disclaimer o segnalaci un problema.
IMMAGINI
IN SINTESI
DESCRIZIONE
di recente costruzione con cantina con posto auto in asta giudiziaria con balcone con garage di recente ristrutturazione di recente costruzione
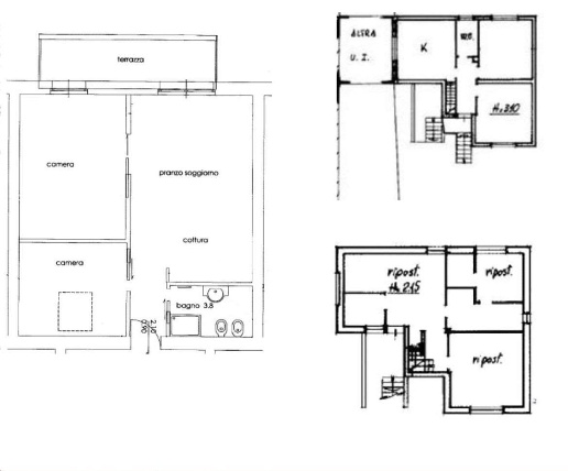
Unità immobiliare collocata al secondo piano di una palazzina posta in località Gazzolo. L’abitazione si compone di atrio d’ingresso, cucina, soggiorno, ripostiglio, un ampio disimpegno che porta alla zona notte composta da due camere doppie, una cam […]
