Valutazione immobiliare indipendente, accurata e gratuita
Appartamento in vendita a Lonato del Garda a 289.000 € (cod.65948ddf)
Caasa non ha sufficienti informazioni per commentare l'appartamento in vendita a Lonato del Garda - 65948ddf.
Analisi immobiliare
I dati in posseso di Caasa per quest'immobile sono insufficienti, inaffidabili o contraddittori per proporre un'analisi attendibile.
Mercato immobiliare a Lonato del Garda
Per quanto riguarda più in generale la città di Lonato del Garda, sono presenti al momento quasi 500 annunci per
appartamenti in vendita (meno del 5% dell'intera provincia)
e il maggior numero di annunci per questa tipologia sono relativi alla zona di Barcuzzi.
La dinamica dei prezzi in tutta la città mostra che negli ultimi 6 mesi, i prezzi per appartamenti in vendita sono
in debole aumento (+2,13%).
NOVITÀ Il risultato che vedi dipende dai dati che siamo riusciti ad estrarre dall'annuncio: ottieni una stima più accuranta di questo immobile, inserendo dati più precisi.
N.B. L'Opinione di Caasa® è un servizio sperimentale realizzato tramite tecniche di Intelligenza Artificiale, fornito senza alcuna garanzia di correttezza e completezza. Leggi il disclaimer o segnalaci un problema.
IMMAGINI
IN SINTESI
PROPOSTO DA:
Affiliato Tecnorete: TECNOLONATO SRL - Tecnorete
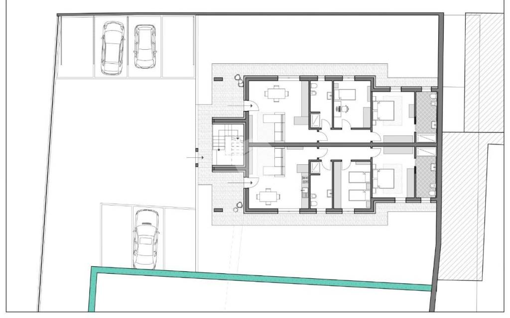
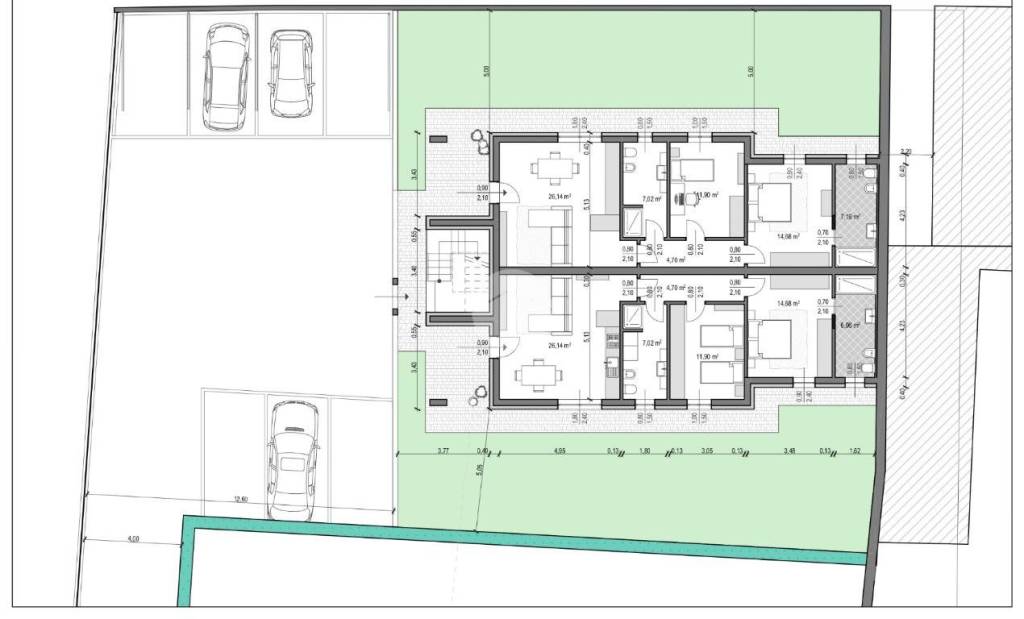
DESCRIZIONE
di nuova costruzione con posto auto con giardino di nuova costruzione
A Lonato del Garda ,si propongono in vendita due appartamenti trilocali DI NUOVA COSTRUZIONE. Situato al piano terra, l'immobile offre spazi ben distribuiti e moderni. L'appartamento è composto da tre locali, tra cui due camere da letto , sono presenti due bagni, progettati con finiture di qualità. Il giardino privato rappresenta un'oasi di relax all'aperto, perfetta per momenti di svago e convivialità. L'immobile è dotato di aria condizionata, garantendo comfort in ogni stagione. Completano la proprietà un box auto e un posto auto scoperto, offrendo praticità e sicurezza. La costruzione, prevista per SETTEMBRE 2027


