Valutazione immobiliare indipendente, accurata e gratuita
Appartamento in vendita a Lonato del Garda in zona Sedena a 37.755 € (cod.64f7782a)
Caasa non ha sufficienti informazioni per commentare l'appartamento a Lonato del Garda in zona Sedena - 64f7782a.
	Analisi immobiliare
	
	I dati in posseso di Caasa per quest'immobile sono insufficienti, inaffidabili o contraddittori per proporre un'analisi attendibile.
	
	Mercato immobiliare a Lonato del Garda
	
	Per quanto riguarda più in generale la città di Lonato del Garda, sono presenti al momento quasi 500 annunci per 
		appartamenti in vendita (meno del 5% dell'intera provincia) 
	
	 e il maggior numero di annunci per questa tipologia sono relativi alla zona di Lido, mentre la zona di Sedena risulta molto meno attiva considerando il numero di annunci presenti.
	
	
	La richiesta media nella zona dove sorge l'appartamento (Sedena) è pari a 
		2.515 €/m², molto vicina ai valori della zona Barcuzzi che sono i più alti della città .
	
	
	Possiamo inoltre considerare che in tutta la città negli ultimi 6 mesi, i prezzi per appartamenti in vendita sono 
		in sostanziale aumento (+6,71%).
	
	
	
NOVITÀ Il risultato che vedi dipende dai dati che siamo riusciti ad estrarre dall'annuncio: ottieni una stima più accuranta di questo immobile, inserendo dati più precisi.
N.B. L'Opinione di Caasa® è un servizio sperimentale realizzato tramite tecniche di Intelligenza Artificiale, fornito senza alcuna garanzia di correttezza e completezza. Leggi il disclaimer o segnalaci un problema.
IMMAGINI
IN SINTESI
DESCRIZIONE
di recente costruzione di recente ristrutturazione di recente costruzione in asta giudiziaria
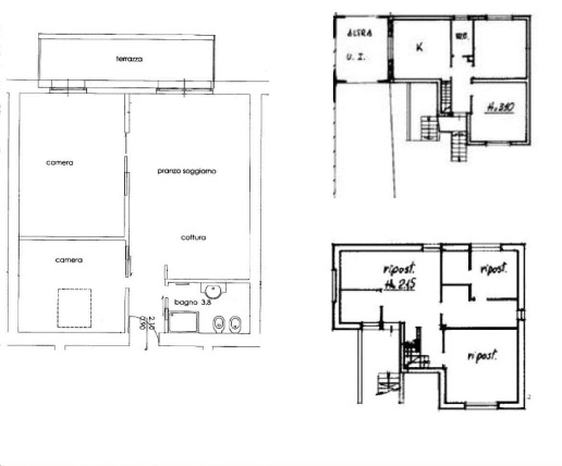
In Comune di Lonato del Garda (BS), frazione Sedena, via XXIV Maggio 17/D, piena proprietà di appartamento al piano terreno, composto da ingresso-soggiorno-cucina, camera matrimoniale e bagno. ASTE IMMOBILIARI: Per informazioni e visite immobiliari c […]
 
                               
                               
                               
                               
                               
                               
                               
                               
                               
                               
                               
                               
                               
                               
                              