Valutazione immobiliare indipendente, accurata e gratuita

Appartamento in vendita a Lonato del Garda in zona Esenta a 132.750 € (cod.64ebd3d0)

Caasa non ha sufficienti informazioni per commentare l'appartamento a Lonato del Garda in zona Esenta - 64ebd3d0.

Analisi immobiliare
I dati in posseso di Caasa per quest'immobile sono insufficienti, inaffidabili o contraddittori per proporre un'analisi attendibile.
Mercato immobiliare a Lonato del Garda
Per quanto riguarda più in generale la città di Lonato del Garda, sono presenti al momento quasi 500 annunci per appartamenti in vendita (meno del 5% dell'intera provincia) e il maggior numero di annunci per questa tipologia sono relativi proprio alla zona di Esenta.
La richiesta media nella zona dove sorge l'appartamento (Esenta) è pari a 2.100 €/m² che la rende la più economica della città .
Per quanto riguarda la dinamica dei prezzi, negli ultimi 6 mesi i prezzi medi in tutta la città per appartamenti in vendita sono in sostanziale aumento (+6,71%).

NOVITÀ Il risultato che vedi dipende dai dati che siamo riusciti ad estrarre dall'annuncio: ottieni una stima più accuranta di questo immobile, inserendo dati più precisi.

N.B. L'Opinione di Caasa® è un servizio sperimentale realizzato tramite tecniche di Intelligenza Artificiale, fornito senza alcuna garanzia di correttezza e completezza. Leggi il disclaimer o segnalaci un problema.

IMMAGINI

IN SINTESI

Prezzo:
132.750 €
Superficie:
133 m²
Prezzo al m²:
998 €/m²
Piano:
terra
Bagni:
2
Classe energetica:
G
Città:
Lonato del Garda (BS)
Zona OMI:
D2 (ZONA ESTERNA AL CAPOLUOGO E FRAZIONI)
Indirizzo:
Pubblicato:
gio 2 ottobre 2025

PROPOSTO DA:

Neovit s.r.l. Consulting

DESCRIZIONE

di recente ristrutturazione con posto auto con garage con cantina di recente ristrutturazione con angolo cottura in asta giudiziaria

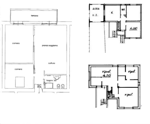
Trattasi di una abitazione ubicata all’interno di una palazzina nel centro storico del Comune di Lonato del Garda (BS), nella frazione di Esenta, in via Damiano Chiesa n. 5. Il comparto è costituito da un appartamento con corte esclusiva e posto auto coperto esclusivo. L’unità immobiliare ha accesso dal civico 5 di via Damiano Chiesa dove, attraversando l’androne di ingresso e passando per corte esclusiva (pavimentata), si giunge all’ingresso dell’abitazione posto a metà del lato ovest. In fondo alla corte è presente un portico, con destinazione d’uso posto auto coperto e un ripostiglio realizzato al di sotto. L’appartamento è distribuito su due livelli ed è costituito al piano terra da vano soggiorno con angolo cottura e lavanderia/bagno; dal soggiorno si può accedere al piano primo utilizzando la scala esclusiva interna da cui si accede al corridoio della zona notte per l’ingresso a tre camere da letto e un bagno. ASTE IMMOBILIARI: Per informazioni e visite immobiliari contattare il numero 030/6363111. L'immobile viene venduto dal tribunale tramite asta giudiziaria e il prezzo indicato si riferisce all’offerta minima. Inoltre, per chi acquista come prima casa, sono previste ulteriori e vantaggiose agevolazioni. NEOVIT srl consulting è una società di consulenza che accompagna il cliente in tutto il percorso relativo all'acquisto tramite asta giudiziaria, abilitata anche nel ritiro dei crediti immobiliari. Contattaci per avere tutte le informazioni necessarie, i nostri consulenti sono a tua disposizione per accompagnarti dalla ricerca dell' immobile fino alla consegna delle chiavi, compreso l'eventuale assistenza per l'ottenimento di un mutuo. Il nostro staff è formato da professionisti del settore con competenze diverse, in grado di fornire una consulenza e assistenza a 360 gradi sia da un punto di vista tecnico-immobiliare legale. Il progetto NPL nasce nel nostro studio nel 2022 con l'intento ed al fine di massimizzare il recupero del credito deteriorato attraverso le chiusure stragiudiziali dei contenz[…]

  • yescasa.it
  • trovacasa.net