Valutazione immobiliare indipendente, accurata e gratuita
Appartamento in vendita a Gardone Val Trompia a 50.000 € (cod.657e5909)
Caasa non ha sufficienti informazioni per commentare l'appartamento in vendita a Gardone Val Trompia - 657e5909.
Analisi immobiliare
I dati in posseso di Caasa per quest'immobile sono insufficienti, inaffidabili o contraddittori per proporre un'analisi attendibile.
Mercato immobiliare a Gardone Val Trompia
Per quanto riguarda più in generale il comune di Gardone Val Trompia, sono presenti al momento più di cento annunci per
appartamenti in vendita (meno dell'1% dell'intera provincia)
e il maggior numero di annunci per questa tipologia sono relativi alla zona di Inzino.
Relativamente alla dinamica dei prezzi, possiamo dire che negli ultimi 6 mesi i prezzi medi in tutto il comune per appartamenti in vendita sono
in sostanziale calo (-5,61%).
NOVITÀ Il risultato che vedi dipende dai dati che siamo riusciti ad estrarre dall'annuncio: ottieni una stima più accuranta di questo immobile, inserendo dati più precisi.
N.B. L'Opinione di Caasa® è un servizio sperimentale realizzato tramite tecniche di Intelligenza Artificiale, fornito senza alcuna garanzia di correttezza e completezza. Leggi il disclaimer o segnalaci un problema.
IMMAGINI
IN SINTESI
PROPOSTO DA:
Neovit s.r.l. Consulting
DESCRIZIONE
di recente costruzione con cantina di recente ristrutturazione in asta giudiziaria di recente costruzione
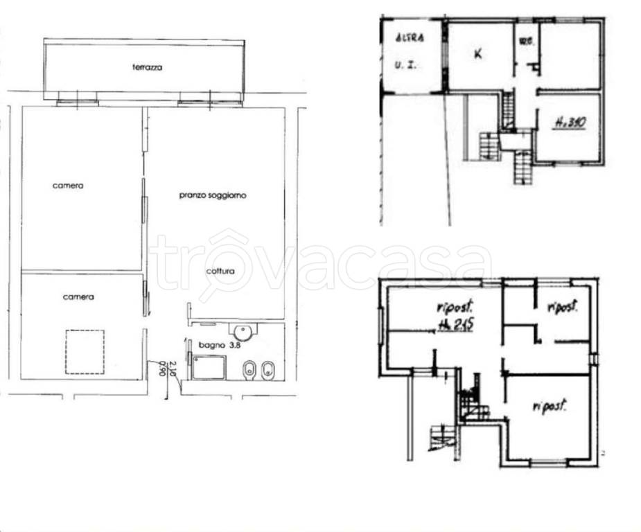
Appartamento al secondo piano con cantina e porzione di sottotetto. Composto da ampio soggiorno, cucina, due camere ed un bagno. ASTE IMMOBILIARI: Per informazioni e visite immobiliari contattare il numero 030/6363111. L'immobile viene venduto dal tr […]
