Valutazione immobiliare indipendente, accurata e gratuita
Appartamento in vendita a Desenzano del Garda a 460.000 € (cod.659c0587)
Caasa non ha sufficienti informazioni per commentare l'appartamento in vendita a Desenzano del Garda - 659c0587.
Analisi immobiliare
I dati in posseso di Caasa per quest'immobile sono insufficienti, inaffidabili o contraddittori per proporre un'analisi attendibile.
Mercato immobiliare a Desenzano del Garda
Per quanto riguarda più in generale la città di Desenzano del Garda, sono presenti al momento ben oltre mille annunci per
appartamenti in vendita (meno del 10% dell'intera provincia)
e il maggior numero di annunci per questa tipologia sono relativi alla zona di Rivoltella.
La dinamica dei prezzi in tutta la città mostra che negli ultimi 6 mesi, i prezzi per appartamenti in vendita sono
in leggero aumento (+2,93%).
NOVITÀ Il risultato che vedi dipende dai dati che siamo riusciti ad estrarre dall'annuncio: ottieni una stima più accuranta di questo immobile, inserendo dati più precisi.
N.B. L'Opinione di Caasa® è un servizio sperimentale realizzato tramite tecniche di Intelligenza Artificiale, fornito senza alcuna garanzia di correttezza e completezza. Leggi il disclaimer o segnalaci un problema.
IMMAGINI
IN SINTESI
PROPOSTO DA:
STUDIO IMMOBILIARE ABITARE IL GARDA SAS DI BALDASSARE CLAUDIO E C.
Viale Marconi, 66, Desenzano del Garda (BS)
DESCRIZIONE
di nuova costruzione con posto auto con giardino di nuova costruzione con termocondizionamento con cantina con ascensore con balcone
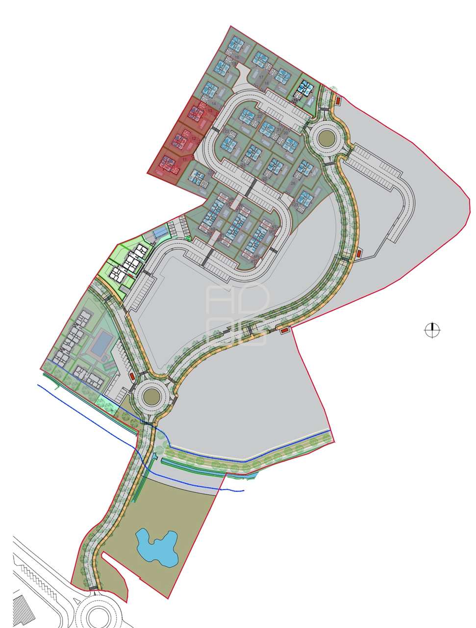
Alle porte di Desenzano del Garda, in una tranquilla area immersa nel verde e al tempo stesso comoda alla stazione ferroviaria, alle principali vie di collegamento e a tutti i servizi, nascerà un vero e proprio nuovo quartiere residenziale. Un progetto ambizioso che prenderà avvio nel 2026, con la consegna delle prime unità abitative prevista per l'inizio dell'estate 2027. Il piano di sviluppo prevede diverse tipologie costruttive per rispondere a ogni esigenza abitativa: ville singole indipendenti, soluzioni quadri-familiari e moderne palazzine residenziali con appartamenti bilocali, trilocali e quadrilocali. Un contesto dinamico e armonioso, progettato per offrire qualità della vita, comfort e sostenibilità. In questa scheda vi presentiamo il modello tipo del quadrilocale, che sarà disponibile nella prima palazzina residenziale prevista in costruzione. L'edificio sarà composto da dodici unità distribuite su tre piani fuori terra, oltre a un piano interrato dedicato alle autorimesse, con ogni piano servito da due vani scala completi di ascensore. Tra le dotazioni comuni troverà spazio anche una splendida area piscina, pensata per garantire momenti di relax e convivialità. Il quadrilocale si distingue per spazi moderni e funzionali: una luminosa zona giorno, un bagno finestrato, un comodo ripostiglio e tre confortevoli camere da letto. Le unità al piano terra saranno valorizzate da un porticato vivibile con giardino privato, mentre quelle ai piani primo e secondo disporranno di ampi terrazzi esclusivi. Il progetto è interamente orientato a un modello di vita contemporaneo, con particolare attenzione al benessere e alla sostenibilità: costruzioni ecosostenibili, antisismiche e completamente elettriche, progettate per ridurre i consumi e azzerare l'impatto ambientale. Un'opportunità unica e interessante sia come abitazione principale sia come investimento. Per maggiori informazioni e approfondimenti restiamo a disposizione. CLASSE ENERGETICA: A





