Valutazione immobiliare indipendente, accurata e gratuita
Appartamento in vendita a Desenzano del Garda a 2.650.000 € (cod.659743dc)
Caasa non ha sufficienti informazioni per commentare l'appartamento in vendita a Desenzano del Garda - 659743dc.
Analisi immobiliare
I dati in posseso di Caasa per quest'immobile sono insufficienti, inaffidabili o contraddittori per proporre un'analisi attendibile.
Mercato immobiliare a Desenzano del Garda
Per quanto riguarda più in generale la città di Desenzano del Garda, sono presenti al momento ben oltre mille annunci per
appartamenti in vendita (meno del 10% dell'intera provincia)
e il maggior numero di annunci per questa tipologia sono relativi alla zona di Rivoltella.
Per quanto riguarda la dinamica dei prezzi, negli ultimi 6 mesi i prezzi medi in tutta la città per appartamenti in vendita sono
in leggero aumento (+2,93%).
NOVITÀ Il risultato che vedi dipende dai dati che siamo riusciti ad estrarre dall'annuncio: ottieni una stima più accuranta di questo immobile, inserendo dati più precisi.
N.B. L'Opinione di Caasa® è un servizio sperimentale realizzato tramite tecniche di Intelligenza Artificiale, fornito senza alcuna garanzia di correttezza e completezza. Leggi il disclaimer o segnalaci un problema.
IMMAGINI
IN SINTESI
PROPOSTO DA:
STUDIO IMMOBILIARE ABITARE IL GARDA SAS DI BALDASSARE CLAUDIO E C.
Viale Marconi, 66, Desenzano del Garda (BS)
DESCRIZIONE
di nuova costruzione con posto auto con terrazza con garage con giardino con termocondizionamento di nuova costruzione con cantina con ascensore con balcone
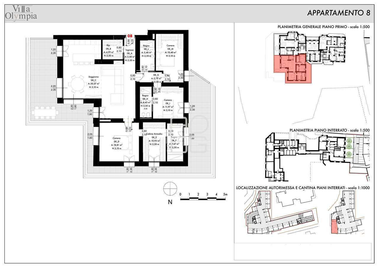
Un'icona di stile affacciata sulle acque del Lago di Garda Costruita negli anni Quaranta del Novecento, Villa Olympia è un edificio iconico nel panorama di Desenzano del Garda e ne rappresenta un'importante testimonianza storica e architettonica. La sua posizione privilegiata, direttamente affacciata sul lago e a pochi passi dal centro storico, la colloca in un scenario di particolare pregio. Villa Olympia è attualmente oggetto di un intervento conservativo finalizzato a valorizzare e riportare alla luce tutto lo splendore dell'edificio. Al primo piano di questo contesto dotato di piscina condominiale e ascensore e composto da 20 unità abitative, proponiamo in vendita l'unità abitativa n. 8: un meraviglioso appartamento che ospita l'ampia zona living di oltre 50 mq con cucina a vista ed accesso diretto alla terrazza esclusiva di oltre 83 mq che abbraccia tutto il perimetro dell'immobile, luogo straordinario per ammirare l'unicità del paesaggio e della vista lago, la camera padronale con cabina armadio e bagno en-suite, la seconda camera da letto matrimoniale, la terza camera da letto doppia con bagno en-suite, il terzo bagno e un ripostiglio/lavanderia. A completare la proprietà, troviamo al piano interrato un garage quadruplo con annessa cantina. All'interno di Villa Olympia sono disponibili anche altre soluzioni abitative, tutte progettate per valorizzare l'eleganza senza tempo del contesto, dare forma ad ambienti interni ricchi di fascino e connettere gli spazi esterni con l'ambiente circostante. Villa Olympia è sinonimo di bellezza e raffinatezza. È una residenza unica collocata in una delle località più conosciute ed apprezzate del Lago di Garda. Contattaci e lasciati conquistare dall'esperienza di vivere la storia senza rinunciare alle comodità dell'abitare di oggi. CLASSE ENERGETICA

