Valutazione immobiliare indipendente, accurata e gratuita
L'Opinione di Caasa® per la casa indipendente a Desenzano del Garda in zona Rivoltella a 1.890.000 € (cod.6503176b)
Secondo Caasa, per la casa indipendente a Desenzano del Garda Rivoltella, la richiesta di 1.890.000 € è equilibrata rispetto agli annunci simili.
Analisi immobiliare
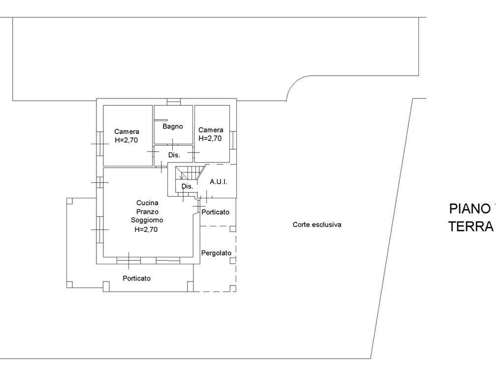
La casa indipendente, situata nella zona OMI B2, è proposta in vendita a
1.890.000 € per una
superficie commerciale di
390 m² e quindi ad un prezzo per metro quadrato pari a
4846 €/m²
.
Tale valore
è in linea con quello stimato da Caasa per immobili in vendita simili per tipologia e caratteristiche e localizzati nella stessa zona OMI, che è compreso tra
4.906 €/m² e
5.481 €/m².
Grazie alla conoscenza con buona approssimazione della localizzazione dell'immobile, è stato possibile utilizzare come raffronto i dati medi elaborati esattamente nella zona OMI di appertenenza (CENTRO STORICO E ZONA PORTO) per case indipendenti (da 2.680 €/m² a 4.955 €/m²) e per ville (da 2.385 €/m² a 5.185 €/m²). Anche se Caasa non è riuscita a determinare la classe energetica, ad affinare la stima ha contribuito anche lo stato dell'immobile (di nuova costruzione). Per queste considerazioni i valori accettabili per l'offerta costituiscono un intervallo relativamente limitato.
Mercato immobiliare a Desenzano del Garda
Per quanto riguarda più in generale la città di Desenzano del Garda, sono presenti al momento ben circa mille annunci per
case indipendenti in vendita (meno del 10% dell'intera provincia)
e il maggior numero di annunci per questa tipologia sono relativi proprio alla zona di Rivoltella.
La richiesta media nella zona dove sorge la casa indipendente (Rivoltella) è pari a
3.700 €/m² e ne fa la più pregiata della città .
La dinamica dei prezzi in tutta la città mostra che negli ultimi 6 mesi, i prezzi per case indipendenti in vendita sono
in sostanziale aumento (+6,79%).
NOVITÀ Il risultato che vedi dipende dai dati che siamo riusciti ad estrarre dall'annuncio: ottieni una stima più accuranta di questo immobile, inserendo dati più precisi.
N.B. L'Opinione di Caasa® è un servizio sperimentale realizzato tramite tecniche di Intelligenza Artificiale, fornito senza alcuna garanzia di correttezza e completezza. Leggi il disclaimer o segnalaci un problema.
IMMAGINI
IN SINTESI
PROPOSTO DA:
Gardaffare srl
