Valutazione immobiliare indipendente, accurata e gratuita
Appartamento in vendita a Desenzano del Garda a 450.000 € (cod.64ebd2c6)
Caasa non ha sufficienti informazioni per commentare l'appartamento in vendita a Desenzano del Garda - 64ebd2c6.
Analisi immobiliare
I dati in posseso di Caasa per quest'immobile sono insufficienti, inaffidabili o contraddittori per proporre un'analisi attendibile.
Mercato immobiliare a Desenzano del Garda
Per quanto riguarda più in generale la città di Desenzano del Garda, sono presenti al momento ben oltre mille annunci per
appartamenti in vendita (meno del 10% dell'intera provincia)
e il maggior numero di annunci per questa tipologia sono relativi alla zona di Rivoltella.
Possiamo inoltre considerare che in tutta la città negli ultimi 6 mesi, i prezzi per appartamenti in vendita sono
in aumento (+4,82%).
NOVITÀ Il risultato che vedi dipende dai dati che siamo riusciti ad estrarre dall'annuncio: ottieni una stima più accuranta di questo immobile, inserendo dati più precisi.
N.B. L'Opinione di Caasa® è un servizio sperimentale realizzato tramite tecniche di Intelligenza Artificiale, fornito senza alcuna garanzia di correttezza e completezza. Leggi il disclaimer o segnalaci un problema.
IMMAGINI
IN SINTESI
DESCRIZIONE
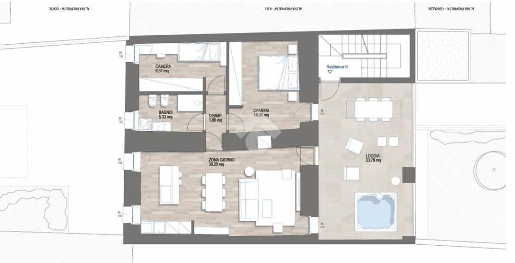
con posto auto con terrazza
Nel cuore del centro storico di Desenzano del Garda, a soli 500 metri dal lungolago, sorgono Le Residenze Murachette, un raffinato complesso residenziale, in fase di ristrutturazione, situato in una posizione esclusiva e tranquilla. Residenza 02 Piano Primo Proponiamo in vendita appartamento trilocale al primo piano, con ampia loggia coperta, ideale per vivere l’outdoor in ogni stagione. Gli interni offrono una spaziosa zona giorno open space, due camere da letto e un bagno, in un perfetto equilibrio tra funzionalità e design. Completa la proprietà un posto auto


