Valutazione immobiliare indipendente, accurata e gratuita
Appartamento in vendita a Desenzano del Garda in zona Rivoltella a 560.000 € (cod.647f7283)
Caasa non ha sufficienti informazioni per commentare l'appartamento a Desenzano del Garda Rivoltella - 647f7283.
Analisi immobiliare
I dati in posseso di Caasa per quest'immobile sono insufficienti, inaffidabili o contraddittori per proporre un'analisi attendibile.
Mercato immobiliare a Desenzano del Garda
Per quanto riguarda più in generale la città di Desenzano del Garda, sono presenti al momento ben oltre mille annunci per
appartamenti in vendita (meno del 10% dell'intera provincia)
e il maggior numero di annunci per questa tipologia sono relativi proprio alla zona di Rivoltella.
La richiesta media nella zona dove sorge l'appartamento (Rivoltella pressi Via San Zeno) è pari a
3.945 €/m² e ne fa la più pregiata della città .
La dinamica dei prezzi in tutta la città mostra che negli ultimi 6 mesi, i prezzi per appartamenti in vendita sono
in aumento (+4,82%).
NOVITÀ Il risultato che vedi dipende dai dati che siamo riusciti ad estrarre dall'annuncio: ottieni una stima più accuranta di questo immobile, inserendo dati più precisi.
N.B. L'Opinione di Caasa® è un servizio sperimentale realizzato tramite tecniche di Intelligenza Artificiale, fornito senza alcuna garanzia di correttezza e completezza. Leggi il disclaimer o segnalaci un problema.
IMMAGINI
IN SINTESI
PROPOSTO DA:
Gardaffare srl
DESCRIZIONE
di nuova costruzione con posto auto con terrazza con garage di nuova costruzione con ascensore
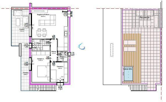
Desenzano del Garda Nuovo progetto per la realizzazione del RESIDENCE "SAN ZENO" che sorgerà a Rivoltella, Via San Zeno in ottima zona residenziale. Il complesso sarà costituito da 21 appartamenti con piscina condominiale, ampi garage e posti auto privati. Ci saranno varie tipologie quali TRILOCALI, QUADRILOCALI, PENTALOCALI ed ATTICI vista lago. Tutti gli appartamenti saranno serviti da ascensore ed avranno abbinati un box auto. Possibilità d'acquisto ulteriore posto auto esterno. Il progetto è stato studiato nei minimi dettagli per conferire un DESIGN MODERNO, ELEVATO CONFORT e MASSIMO RISPARMIO ENERGETICO. Attico trilocale al secondo ed ultimo piano, composto da soggiorno con cucina a vista, disimpegno, due camere e due bagni. L'appartamento avrà un'ampia terrazza coperta con una scala privata che porterà al piano sundek con pergola e vasca idromassaggio privata. Completa la proprietà un garage nell'interrato. Consegna prevista estate 2026! PREZZO 560.000 euro + Iva di legge Per maggiori informazioni contattateci Gardaffare 030.9905461. Rif. 25-26




