Valutazione immobiliare indipendente, accurata e gratuita
Casa indipendente in vendita a Comezzano-Cizzago a 730.000 € (cod.64eab3f2)
Caasa non ha sufficienti informazioni per commentare la casa indipendente in vendita a Comezzano-Cizzago - 64eab3f2.
Analisi immobiliare
I dati in posseso di Caasa per quest'immobile sono insufficienti, inaffidabili o contraddittori per proporre un'analisi attendibile.
Mercato immobiliare a Comezzano-Cizzago
Per quanto riguarda più in generale il comune di Comezzano-Cizzago, sono presenti al momento più di trenta annunci per
case indipendenti in vendita (meno dell'1% dell'intera provincia)
e il maggior numero di annunci per questa tipologia sono relativi alla zona di Comezzano.
Possiamo inoltre considerare che in tutto il comune negli ultimi 6 mesi, i prezzi per case indipendenti in vendita sono
in forte calo (-12,48%).
NOVITÀ Il risultato che vedi dipende dai dati che siamo riusciti ad estrarre dall'annuncio: ottieni una stima più accuranta di questo immobile, inserendo dati più precisi.
N.B. L'Opinione di Caasa® è un servizio sperimentale realizzato tramite tecniche di Intelligenza Artificiale, fornito senza alcuna garanzia di correttezza e completezza. Leggi il disclaimer o segnalaci un problema.
IMMAGINI
IN SINTESI
DESCRIZIONE
di recente ristrutturazione con posto auto con giardino con termocondizionamento con balcone da ristrutturare di recente ristrutturazione con riscaldamento autonomo senza ascensore
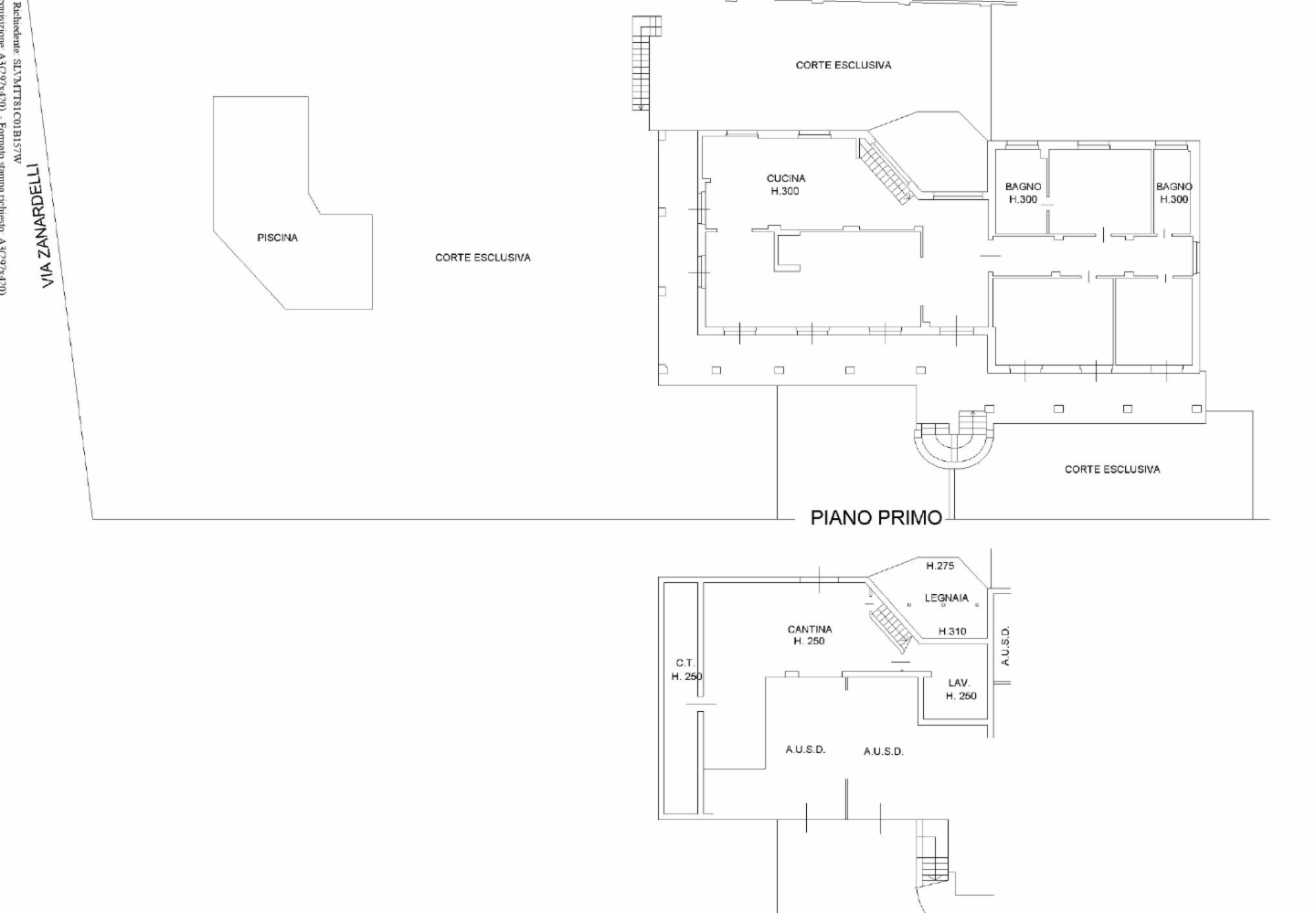
Villa di pregio completamente ristrutturata e rifinita in maniera impeccabile!!! L'abitazione principale si sviluppa tutta su un piano ed è circondata da un parco con piscina privata; dispone inoltre di un magazzino/laboratorio di quasi 400mq. ideale […]
