Valutazione immobiliare indipendente, accurata e gratuita
Casa indipendente in vendita a Cedegolo (cod.64f987a8)
Caasa non ha sufficienti informazioni per commentare la casa indipendente in vendita a Cedegolo - 64f987a8.
Analisi immobiliare
I dati in posseso di Caasa per quest'immobile sono insufficienti, inaffidabili o contraddittori per proporre un'analisi attendibile.
Mercato immobiliare a Cedegolo
Per quanto riguarda più in generale il comune di Cedegolo, sono presenti al momento più di venti annunci per
case indipendenti in vendita (meno dell'1% dell'intera provincia) .
NOVITÀ Il risultato che vedi dipende dai dati che siamo riusciti ad estrarre dall'annuncio: ottieni una stima più accuranta di questo immobile, inserendo dati più precisi.
N.B. L'Opinione di Caasa® è un servizio sperimentale realizzato tramite tecniche di Intelligenza Artificiale, fornito senza alcuna garanzia di correttezza e completezza. Leggi il disclaimer o segnalaci un problema.
IMMAGINI
IN SINTESI
DESCRIZIONE
di recente costruzione di recente ristrutturazione in asta giudiziaria di recente costruzione
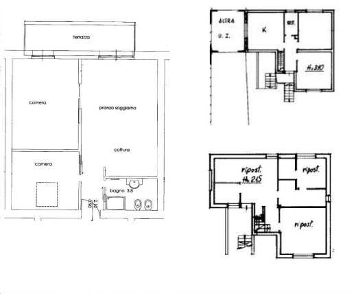
In Comune di Cedegolo (BS), piena proprietà di fabbricato rurale di 160 mq su due piani con terreni agricoli di 13.984 mq, accessibile tramite la strada comunale carrareccia "del Poglia", che collega il capoluogo Cedegolo al Comune di Cevo. ASTE IMMO […]
