Valutazione immobiliare indipendente, accurata e gratuita
Appartamento in vendita a Cazzago San Martino in zona Bornato a 180.000 € (cod.64f77885)
Caasa non ha sufficienti informazioni per commentare l'appartamento a Cazzago San Martino in zona Bornato - 64f77885.
Analisi immobiliare
I dati in posseso di Caasa per quest'immobile sono insufficienti, inaffidabili o contraddittori per proporre un'analisi attendibile.
Mercato immobiliare a Cazzago San Martino
Per quanto riguarda più in generale il comune di Cazzago San Martino, sono presenti al momento circa cento annunci per
appartamenti in vendita (meno dell'1% dell'intera provincia)
e il maggior numero di annunci per questa tipologia sono relativi proprio alla zona di Bornato.
Per quanto riguarda la richiesta media in zona Bornato, dove sorge l'appartamento, essa è pari a circa
1.530 €/m² per appartamenti in vendita.
Relativamente alla dinamica dei prezzi, possiamo dire che negli ultimi 6 mesi i prezzi medi in tutto il comune per appartamenti in vendita sono
in calo (-4,99%).
NOVITÀ Il risultato che vedi dipende dai dati che siamo riusciti ad estrarre dall'annuncio: ottieni una stima più accuranta di questo immobile, inserendo dati più precisi.
N.B. L'Opinione di Caasa® è un servizio sperimentale realizzato tramite tecniche di Intelligenza Artificiale, fornito senza alcuna garanzia di correttezza e completezza. Leggi il disclaimer o segnalaci un problema.
IMMAGINI
IN SINTESI
PROPOSTO DA:
Neovit s.r.l. Consulting
DESCRIZIONE
di recente costruzione con posto auto con garage con terrazza di recente ristrutturazione con balcone di recente costruzione in asta giudiziaria
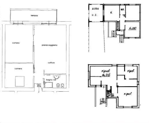
In Comune di CAZZAGO SAN MARTINO - LOC. BORNATO - VIA DEI MOSNELLI n. 3 - piena proprietà di un appartamento con la relativa autorimessa. Al piano terra, troviamo una corte con ingresso diretto ed esclusivo da via Mosnelli, pavimentata con piscina, pari a mq 81, più collegato soggiorno di mq 42,75 di cui mq 24,40 soppalcati, con scala a giorno per raggiungere il primo piano, infine adiacente cucina/pranzo mq 24,85; al primo piano, arrivo scala, soppalco e disimpegno notte, servizio igienico, camera matrimoniale di mq 21,85 più camera singola con scala a giorno di mq 14,90 collegante il secondo piano; al piano superiore, arrivo scala - soggiorno/pranzo - cottura di mq 28,30 escluso l’ingombro scala e mq 30,70 al lordo dello stesso, ed ancora balcone, con portoncino d’ingresso collegato al vano scala comune condominiale, più disimpegno notte, camera di mq 14,60, servizio igienico, camera di mq 21,55 ed ulteriore balcone. Completano la proprietà un box auto singolo di superficie lorda pari a mq 14 con h. 2.30 e area urbana di superficie mq 25 con superiore struttura leggera, aperta e coperta in legno. ASTE IMMOBILIARI: Per informazioni e visite immobiliari contattare il numero 030/6363111. L'immobile viene venduto dal tribunale tramite asta giudiziaria e il prezzo indicato si riferisce all’offerta minima. Inoltre, per chi acquista come prima casa, sono previste ulteriori e vantaggiose agevolazioni. NEOVIT srl consulting è una società di consulenza che accompagna il cliente in tutto il percorso relativo all'acquisto tramite asta giudiziaria, abilitata anche nel ritiro dei crediti immobiliari. Contattaci per avere tutte le informazioni necessarie, i nostri consulenti sono a tua disposizione per accompagnarti dalla ricerca dell' immobile fino alla consegna delle chiavi, compreso l'eventuale assistenza per l'ottenimento di un mutuo. Il nostro staff è formato da professionisti del settore con competenze diverse, in grado di fornire una consulenza e assistenza a 360 gradi sia da un punto di vista tecnico-immobilia[…]

