Valutazione immobiliare indipendente, accurata e gratuita
L'Opinione di Caasa® per l'appartamento in vendita a Castelcovati a 150.000 € (cod.64f9aa95)
Secondo Caasa, per l'appartamento in vendita a Castelcovati, la richiesta di 150.000 € è equilibrata rispetto agli annunci simili.
Analisi immobiliare
L'appartamento, situato nella zona OMI D1, è proposto in vendita (da Immobiliare Meribe Srl) a
150.000 € per una
superficie commerciale di
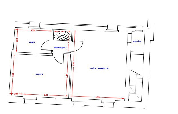
80 m² e quindi ad un prezzo per metro quadrato pari a
1875 €/m²
.
Tale prezzo
è molto vicino a quello stimato da Caasa per immobili in vendita simili per tipologia e caratteristiche, che è compreso tra
1.779 €/m² e
1.990 €/m².
E' stato possibile utilizzare in raffronto i soli valori medi cittadini per appartamenti (da 1.385 €/m² a 2.405 €/m²) e per loft (da 1.215 €/m² a 2.255 €/m²). Caasa non dispone infatti di informazioni di dettaglio e di adeguata affidabilità sulle singole zone immobiliari nelle vicinanze dell'immobile e non è stata in grado di determinare in modo affidabile la classe energetica. Per i motivi esposti i valori considerati accettabili per l'offerta economica devono costituire un intervallo adeguatamente ampio.
Mercato immobiliare a Castelcovati
Per quanto riguarda più in generale il comune di Castelcovati, sono presenti al momento più di cinquanta annunci per
appartamenti in vendita (meno dell'1% dell'intera provincia) .
Relativamente alla dinamica dei prezzi, possiamo dire che negli ultimi 6 mesi i prezzi medi in tutto il comune per appartamenti in vendita sono
in forte aumento (+25,76%).
NOVITÀ Il risultato che vedi dipende dai dati che siamo riusciti ad estrarre dall'annuncio: ottieni una stima più accuranta di questo immobile, inserendo dati più precisi.
N.B. L'Opinione di Caasa® è un servizio sperimentale realizzato tramite tecniche di Intelligenza Artificiale, fornito senza alcuna garanzia di correttezza e completezza. Leggi il disclaimer o segnalaci un problema.
IMMAGINI
IN SINTESI
DESCRIZIONE
con termocondizionamento con cucina abitabile con balcone con riscaldamento autonomo senza ascensore
CASTELCOVATI: Nel pieno centro di Castelcovati, proponiamo in vendita appartamento in duplex di nuova realizzazione. La soluzione si dispone su due livelli abitativi e al piano primo presenta una zona living con cucina a vista, un disimpegno centrale, un bagno dotato di sanitari sospesi e piatto doccia ed una camera matrimoniale. Accediamo al secondo livello dell'immobile tramite scala interna e troviamo uno splendido soppalco sfruttabile come ulteriore camera o come studio in base alle proprie esigenze. Le finiture interne dell'appartamento potranno essere scelte in base al proprio gusto prendendo spunto dal capitolato fornito e i serramenti saranno di ultima generazione in PVC. Riscaldamento autonomo e disposto a pavimento. Cappotto esterno. Alta efficienza energetica. Completa l'immobile area esclusiva posto al piano terra. Visite disponibili anche sul posto









