Valutazione immobiliare indipendente, accurata e gratuita
Casa indipendente in vendita a Carpenedolo a 33.750 € (cod.64f87c9a)
Caasa non ha sufficienti informazioni per commentare la casa indipendente in vendita a Carpenedolo - 64f87c9a.
	Analisi immobiliare
	
	I dati in posseso di Caasa per quest'immobile sono insufficienti, inaffidabili o contraddittori per proporre un'analisi attendibile.
	
	Mercato immobiliare a Carpenedolo
	
	Per quanto riguarda più in generale il comune di Carpenedolo, sono presenti al momento più di cinquanta annunci per 
		case indipendenti in vendita (meno dell'1% dell'intera provincia) 
	
	 e il maggior numero di annunci per questa tipologia sono relativi alla zona di Livelli.
	
	
	
	Possiamo inoltre considerare che in tutto il comune negli ultimi 6 mesi, i prezzi per case indipendenti in vendita sono 
		in forte aumento (+16,33%).
	
	
	
NOVITÀ Il risultato che vedi dipende dai dati che siamo riusciti ad estrarre dall'annuncio: ottieni una stima più accuranta di questo immobile, inserendo dati più precisi.
N.B. L'Opinione di Caasa® è un servizio sperimentale realizzato tramite tecniche di Intelligenza Artificiale, fornito senza alcuna garanzia di correttezza e completezza. Leggi il disclaimer o segnalaci un problema.
IMMAGINI
IN SINTESI
PROPOSTO DA:
Neovit s.r.l. Consulting
DESCRIZIONE
di recente costruzione con posto auto con giardino con terrazza con cantina di recente costruzione con balcone in asta giudiziaria con cortile
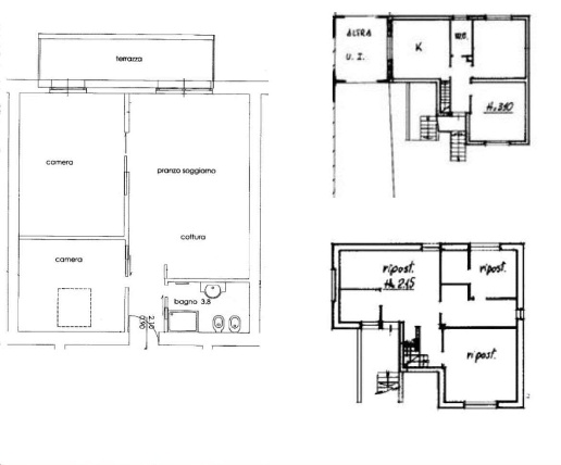
L’immobile è sito nel centro storico di Carpenedolo (BS), raggiungibile da via C. Deretti (SP69), percorrendo un tratto chiuso di via Santa Croce ed immettendosi nel vicolo chiuso denominato vicolo degli Orti dove si trova l’unico ampio accesso pedonale e carraio. Il bene era parte di un articolato ed ampio cascinale poi frazionato in tante unità come l’appezzamento di terreno agricolo di pertinenza. L’immobile è costituito da due piani fuori terra. Dalla strada pubblica si accede al cortile pertinenziale utilizzato come posto auto. Dal portico si accede alla zona giorno comunicante con la cucina che si affaccia verso una veranda; dalla cucina si accede al sottoscala e disimpegno di ingresso al bagno con affaccio verso la veranda; indi si giunge al terreno utilizzato come giardino pertinenziale. Dal soggiorno si imbocca la scala che porta al piano superiore; dal pianerottolo si accede direttamente al bagno con affaccio verso il balcone; il giro scala invita in una stanza multiuso/salotto con portafinestra verso il balcone, in affaccio verso il giardino; dalla portafinestra con gradino della camera si raggiunge la loggia a sud-ovest con vista verso il cortile pertinenziale di ingresso. Una rampa di scala conduce poi al disimpegno del piano mansardato che distribuisce a una camera con affaccio verso il giardino pertinenziale, un ripostiglio cieco e una camera con terrazza verso il cortile pertinenziale di ingresso. ASTE IMMOBILIARI: Per informazioni e visite immobiliari contattare il numero 030/6363111. L'immobile viene venduto dal tribunale tramite asta giudiziaria e il prezzo indicato si riferisce all’offerta minima. Inoltre, per chi acquista come prima casa, sono previste ulteriori e vantaggiose agevolazioni. NEOVIT srl consulting è una società di consulenza che accompagna il cliente in tutto il percorso relativo all'acquisto tramite asta giudiziaria, abilitata anche nel ritiro dei crediti immobiliari. Contattaci per avere tutte le informazioni necessarie, i nostri consulenti sono a tua disposizione per […]
                              
                              
                              
                              
                              
                              
                              
                              
                              
                              
                              
                              
                              
                              
                              
