Valutazione immobiliare indipendente, accurata e gratuita
Terreno edificabile in vendita a Calvisano a 1.250.000 € (cod.6508b61f)
Caasa non ha sufficienti informazioni per commentare il terreno edificabile in vendita a Calvisano - 6508b61f.
Analisi immobiliare
I dati in posseso di Caasa per quest'immobile sono insufficienti, inaffidabili o contraddittori per proporre un'analisi attendibile.
Mercato immobiliare a Calvisano
Per quanto riguarda più in generale il comune di Calvisano, sono presenti al momento più di venti annunci per
terreni edificabili in vendita (meno del 5% dell'intera provincia) .
Vedi altre informazioni direttamente su
Mercato-Immobiliare.info
NOVITÀ Il risultato che vedi dipende dai dati che siamo riusciti ad estrarre dall'annuncio: ottieni una stima più accuranta di questo immobile, inserendo dati più precisi.
N.B. L'Opinione di Caasa® è un servizio sperimentale realizzato tramite tecniche di Intelligenza Artificiale, fornito senza alcuna garanzia di correttezza e completezza. Leggi il disclaimer o segnalaci un problema.
IMMAGINI
IN SINTESI
PROPOSTO DA:
CIBELLI INIZIATIVE IMMOBILIARI
DESCRIZIONE
con termocondizionamento
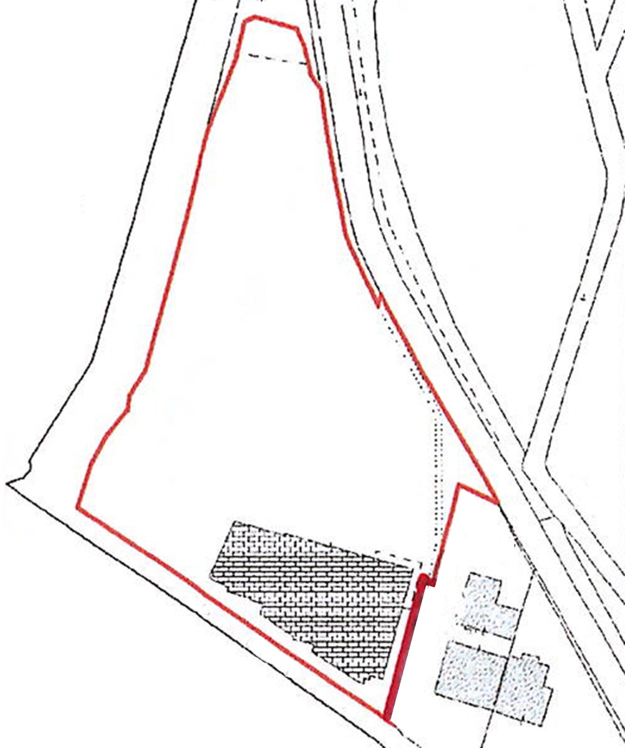
In zona industriale di forte sviluppo, a pochi minuti dall'aeroporto di Montichiari e con accesso immediato alle principali tangenziali, proponiamo la vendita di un terreno industriale/ artigianale di c.a 10.000 mq. Il lotto, tutto recintato, è di completamento urbanistico, con ottima visibilità. Il terreno produttivo ha un indice di copertura dello 0,70 mq/mq ed è ideale per la realizzazione di capannoni produttivi, logistici o commerciali. Un'opportunità per chi cerca un'area pronta in posizione di grande valore strategico commerciale. Driving industrial innovation. Togheter we build the future. Cibelli Iniziative Immobiliari www.cibelli.it info@cibelli.it Non soggetto all'obbligo di certificazione energetica



