Valutazione immobiliare indipendente, accurata e gratuita
Appartamento in vendita a Calvagese della Riviera a 520.000 € (cod.6545187f)
Caasa non ha sufficienti informazioni per commentare l'appartamento in vendita a Calvagese della Riviera - 6545187f.
Analisi immobiliare
I dati in posseso di Caasa per quest'immobile sono insufficienti, inaffidabili o contraddittori per proporre un'analisi attendibile.
Mercato immobiliare a Calvagese della Riviera
Per quanto riguarda più in generale il comune di Calvagese della Riviera, sono presenti al momento più di cinquanta annunci per
appartamenti in vendita (meno dell'1% dell'intera provincia) .
La dinamica dei prezzi in tutto il comune mostra che negli ultimi 6 mesi, i prezzi per appartamenti in vendita sono
in forte aumento (+30,40%).
NOVITÀ Il risultato che vedi dipende dai dati che siamo riusciti ad estrarre dall'annuncio: ottieni una stima più accuranta di questo immobile, inserendo dati più precisi.
N.B. L'Opinione di Caasa® è un servizio sperimentale realizzato tramite tecniche di Intelligenza Artificiale, fornito senza alcuna garanzia di correttezza e completezza. Leggi il disclaimer o segnalaci un problema.
IMMAGINI
IN SINTESI
PROPOSTO DA:
EDILFIN S.R.L.
DESCRIZIONE
di nuova costruzione con giardino con posto auto con garage con termocondizionamento con riscaldamento autonomo con terrazza di nuova costruzione
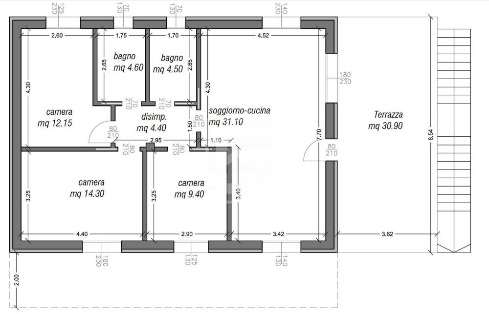
Rif.: MS-003-164 Nuovo progetto per 3 bifamiliari per complessivi 6 quadrilocali autonomi con ampio garage singolo e giardino o terrazza in classe A/4 a Puegnago del Garda. L'appartamento 1P di circa 103 mq sarà ubicato a piano primo, libero su 4 lati e si comporrà come segue: ampio soggiorno con cucina, disimpegno, 2 bagni finestrati con doccia e 3 camere (di cui 2 matrimoniali). Completerà la proprietà garage esclusivo a piano terra di circa 31 mq e giardino privato di circa 55 mq (lordi 86 mq). L'ingresso all'abitazione avverrà tramite cancello carraio e pedonale che condurrà mediante scala privata all'appartamento. Il progetto è in corso di approvazione e prevederà la 4, il riscaldamento in pompa di calore aria/acqua con pannelli radianti a pavimento, predisposizione per il raffrescamento in ogni stanza ad eccezione dei bagni, sanitari sospesi, predisposizione allarme, impianto fotovoltaico, serramenti in pvc doppio-vetro, oscuramento finestre mediante tapparelle coibentate elettriche, e tanto altro. E' possibile visionare il lotto, così come casa campione ed documentazione esecutiva. Ideale come prima abitazione moderna ed efficiente si presta anche ad un utilizzo seconda casa. A due passi sia dal centro di Polpenazze che di Puegnago, è situato in una zona verde e tranquilla nonostante la vicinanza della strada di secondaria importanza. Annuncio a carattere informativo e commerciale: i dati riportati non hanno valore contrattuale e possono essere soggetti a modifiche

