Valutazione immobiliare indipendente, accurata e gratuita

Appartamento in vendita a Brescia in zona Porta Venezia a 78.750 € (cod.64ebd43a)

Caasa non ha sufficienti informazioni per commentare l'appartamento a Brescia in zona Porta Venezia - 64ebd43a.

Analisi immobiliare
I dati in posseso di Caasa per quest'immobile sono insufficienti, inaffidabili o contraddittori per proporre un'analisi attendibile.
Mercato immobiliare a Brescia
Per quanto riguarda più in generale la città di Brescia, sono presenti al momento ben oltre 2.000 annunci per appartamenti in vendita (quasi il 20% dell'intera provincia) e il maggior numero di annunci per questa tipologia sono relativi alla zona di Centro Storico, mentre la zona di Porta Venezia risulta molto meno attiva considerando il numero di annunci presenti.
La richiesta media nella zona dove sorge l'appartamento (Porta Venezia pressi Via Sant'Angela Merici) è pari a 2.555 €/m², molto vicina ai valori della zona Centro Storico che sono i più alti della città .
Possiamo inoltre considerare che in tutta la città negli ultimi 6 mesi, i prezzi per appartamenti in vendita sono in leggero aumento (+3,18%).

NOVITÀ Il risultato che vedi dipende dai dati che siamo riusciti ad estrarre dall'annuncio: ottieni una stima più accuranta di questo immobile, inserendo dati più precisi.

N.B. L'Opinione di Caasa® è un servizio sperimentale realizzato tramite tecniche di Intelligenza Artificiale, fornito senza alcuna garanzia di correttezza e completezza. Leggi il disclaimer o segnalaci un problema.

IMMAGINI

IN SINTESI

Prezzo:
78.750 €
Superficie:
100 m²
Prezzo al m²:
787 €/m²
Piano:
Bagni:
1
Classe energetica:
G
Città:
Brescia (BS)
Zona OMI:
C5 (VIALE VENEZIA, VIA BOIFAVA, VIA DIAZ, VIALE PIAVE, VIA VIVALDI)
Pubblicato:
sab 20 settembre 2025

PROPOSTO DA:

Neovit s.r.l. Consulting

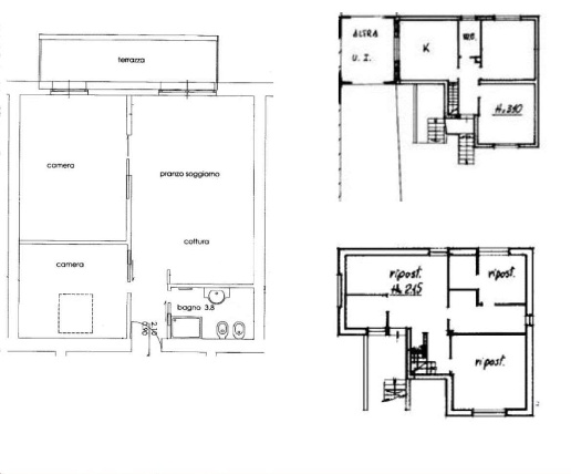
DESCRIZIONE

di recente ristrutturazione con cantina di recente ristrutturazione con balcone in asta giudiziaria

Appartamento per civile abitazione posto al piano terzo del condominio denominato Edelwess. L’unità immobiliare risulta così composta: cucinino e sala pranzo che affacciano su balconcino in lato nord/ovest, soggiorno con balconcino in lato sud/est, due camere da letto, bagno e disimpegno per l’accesso indipendente ai vari locali. Pertinenza dell’appartamento una cantina posta al piano interrato e quota di comproprietà delle parti comuni. ASTE IMMOBILIARI: Per informazioni e visite immobiliari contattare il numero 030/6363111. L'immobile viene venduto dal tribunale tramite asta giudiziaria e il prezzo indicato si riferisce all’offerta minima. Inoltre, per chi acquista come prima casa, sono previste ulteriori e vantaggiose agevolazioni. NEOVIT srl consulting è una società di consulenza che accompagna il cliente in tutto il percorso relativo all'acquisto tramite asta giudiziaria, abilitata anche nel ritiro dei crediti immobiliari. Contattaci per avere tutte le informazioni necessarie, i nostri consulenti sono a tua disposizione per accompagnarti dalla ricerca dell' immobile fino alla consegna delle chiavi, compreso l'eventuale assistenza per l'ottenimento di un mutuo. Il nostro staff è formato da professionisti del settore con competenze diverse, in grado di fornire una consulenza e assistenza a 360 gradi sia da un punto di vista tecnico-immobiliare legale. Il progetto NPL nasce nel nostro studio nel 2022 con l'intento ed al fine di massimizzare il recupero del credito deteriorato attraverso le chiusure stragiudiziali dei contenziosi o incentivando la partecipazione alle aste. L’acquisto di crediti NPL permette di: -di acquistare crediti con garanzia ipotecaria a un prezzo vantaggioso (anche al 50% in meno sull’importo di mercato) -riqualificare gli immobili acquistati con appositi interventi di ristrutturazione allo scopo di accrescerne il valore -ottenere un ritorno certo dai crediti deteriorati in tempi ragionevoli grazie alle diverse exit strategy La nostra prestazione non si configura come attività di i[…]

  • yescasa.it
  • trovacasa.net