Valutazione immobiliare indipendente, accurata e gratuita
Appartamento in vendita a Botticino in zona Botticino Sera a 335.000 € (cod.6533042e)
Caasa non ha sufficienti informazioni per commentare l'appartamento a Botticino in zona Botticino Sera - 6533042e.
Analisi immobiliare
I dati in posseso di Caasa per quest'immobile sono insufficienti, inaffidabili o contraddittori per proporre un'analisi attendibile.
Mercato immobiliare a Botticino
Per quanto riguarda più in generale il comune di Botticino, sono presenti al momento più di 150 annunci per
appartamenti in vendita (meno dell'1% dell'intera provincia)
e il maggior numero di annunci per questa tipologia sono relativi proprio alla zona di Botticino Sera.
La richiesta media nella zona dove sorge l'appartamento (Botticino Sera) è pari a
2.360 €/m² e ne fa la più pregiata del comune .
Possiamo inoltre considerare che in tutto il comune negli ultimi 6 mesi, i prezzi per appartamenti in vendita sono
in forte aumento (+19,84%).
NOVITÀ Il risultato che vedi dipende dai dati che siamo riusciti ad estrarre dall'annuncio: ottieni una stima più accuranta di questo immobile, inserendo dati più precisi.
N.B. L'Opinione di Caasa® è un servizio sperimentale realizzato tramite tecniche di Intelligenza Artificiale, fornito senza alcuna garanzia di correttezza e completezza. Leggi il disclaimer o segnalaci un problema.
IMMAGINI
IN SINTESI
PROPOSTO DA:
altavista immobiliare rezzato
DESCRIZIONE
di nuova costruzione con posto auto con giardino con garage con cantina con termocondizionamento di nuova costruzione con ascensore
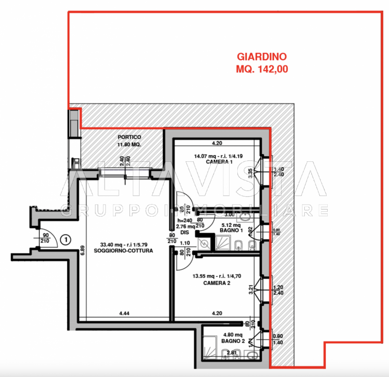
Nel cuore di Botticino Sera, a pochi passi da Brescia, è attualmente in costruzione il complesso residenziale Parco della Valverde. Progettata per offrire il massimo comfort abitativo, questa residenza moderna e sostenibile propone appartamenti al piano terra, ciascuno con ampi giardini privati e dotato delle più avanzate tecnologie per il risparmio energetico. Gli appartamenti trilocali, disponibili in diverse metrature per poter soddisfare le molteplici esigenze di chi acquista la propria abitazione, sono composti da un'ampia zona giorno luminosa con soggiorno e cucina a vista o separabile, due camere da letto e doppi servizi, di cui uno sempre collegato alla camera matrimoniale per il massimo della privacy e del comfort. La residenza è inoltre dotata di un comodo ascensore che collega tutti i piani con l'interrato, dove si trovano i box auto doppi privati e le cantine per ogni unità abitativa. Ogni unità è caratterizzata da spazi ampi e luminosi, finiture di pregio e un perfetto connubio tra funzionalità ed estetica. Le ampie vetrate garantiscono una perfetta continuità tra interno ed esterno, mentre i giardini privati offrono momenti di relax immersi nel verde. La qualità costruttiva si unisce alla tecnologia per l'efficienza energetica, grazie al riscaldamento a pavimento con pompa di calore, ai serramenti a bassa emissività, al cappotto termico, l'impianto fotovoltaico privato e alla predisposizione per la ventilazione meccanica controllata. La soluzione abitativa proposta è un trilocale di 95 mq con portico di 12 mq e giardino di 142 mq. Richiesta: 335.000,00 € Consegna: Primavera 2027 Contattaci per maggiori informazioni e visita il sito web dedicato www.parcodellavalverde.it ALTAVISTA Gruppo Immobiliare precisa che nonostante l'attenzione nell'inserimento dei dati dell'annuncio proposto, potrebbero essere presenti errori e/o omissioni. Il presente annuncio è soltanto descrittivo e non rappresenta un impegno contrattuale, per tale motivo vi preghiamo di contattarci per verificare la disponibilità […]




