Valutazione immobiliare indipendente, accurata e gratuita
L'Opinione di Caasa® per l'appartamento in vendita a Zanica a 335.000 € (cod.63d73baf)
Secondo Caasa, per l'appartamento in vendita a Zanica, la richiesta di 335.000 € è leggermente svantaggiosa rispetto agli annunci simili.
Analisi immobiliare
L'appartamento è proposto in vendita (da CONSULENZE CASA) a
335.000 € per una
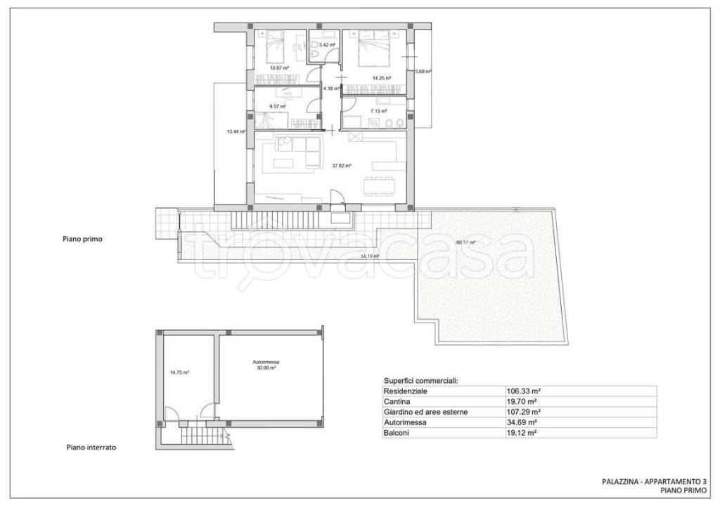
superficie commerciale di
106 m² e quindi ad un prezzo per metro quadrato pari a
3160 €/m²
.
Tale valore
è di poco superiore a quello stimato da Caasa per immobili in vendita simili per tipologia, caratteristiche e classe energetica, che è compreso tra
2.778 €/m² e
3.064 €/m².
Sono stati utilizzati in raffronto i soli valori medi cittadini per appartamenti (da 1.280 €/m² a 2.650 €/m²) e per quadrivani (da 1.620 €/m² a 3.025 €/m²), visto che non è stato possibile determinare in modo affidabile la posizione dell'immobile. All'elaborazione della stima ha però contribuito anche la classe energetica (A+) oltre alla condizione dell'immobile (di nuova costruzione) e alla presenza di alcune caratteristiche significative come il garage, la disponibilità di una cantina o la climatizzazione. Per i motivi esposti i valori considerati accettabili per l'offerta costituiscono un intervallo comunque ampio.
Mercato immobiliare a Zanica
Per quanto riguarda più in generale il comune di Zanica, sono presenti al momento circa cento annunci per
appartamenti in vendita (meno dell'1% dell'intera provincia) .
La dinamica dei prezzi in tutto il comune mostra che negli ultimi 6 mesi, i prezzi per appartamenti in vendita sono
in sostanziale aumento (+5,73%).
NOVITÀ Il risultato che vedi dipende dai dati che siamo riusciti ad estrarre dall'annuncio: ottieni una stima più accuranta di questo immobile, inserendo dati più precisi.
N.B. L'Opinione di Caasa® è un servizio sperimentale realizzato tramite tecniche di Intelligenza Artificiale, fornito senza alcuna garanzia di correttezza e completezza. Leggi il disclaimer o segnalaci un problema.
IMMAGINI
IN SINTESI
DESCRIZIONE
di nuova costruzione con posto auto con termocondizionamento con cantina con terrazza con giardino di nuova costruzione con garage con balcone di recente costruzione con climatizzazione
AD URGNANO, A 5 MINUTI DA ZANICA. NUOVO ULTIMO APPARTAMENTO AL PIANO PRIMO ED ULTIMO CON INGRESSO PEDONALE INDIPENDENTE. Piccola palazzina di sole 4 unità abitative con spese condominiali praticamente assenti. Consegna prevista entro febbraio 2026. Possibilità visionare recente realizzazione con le stesse caratteristiche costruttive. Si propongono grandi e luminosi appartamenti quadrilocali da circa 106mq, tutti con ingresso pedonale indipendente, giardino, box doppio in larghezza ed ampia cantina/taverna-lavanderia nell’interrato (venduta al rustico) raggiungibile sempre da scala interna alla propria proprietà. Terrazzi vivibili per i 2 appartamenti al piano primo. Ottime le finiture di capitolato che prevedono struttura portante in cemento armato, pareti esterne in poroton 25cm, con isolamento a cappotto in polistirene e doppia lastra di cartongesso interna per eliminazione dei ponti termici, riscaldamento a pavimento con pompa di calore che gestisce anche l'impianto di climatizzazione con split già installati (n°5), impianto di Ventilazione Meccanica Controllata (VMC), serramenti basso emissivo in PVC doppio vetro con gas argon, zanzariere già installate, tapparelle motorizzate in alluminio, impianto fotovoltaico 4,5kw (no metano), pavimentazioni di qualità con costo materiale pari a ben 40€/mq, portone box sezionale coibentato e motorizzato, etc. Appartamento 3 piano primo sud-est: ampio e luminoso soggiorno con accesso a terrazzo coperto e vivibile da circa 14mq, cucina a vista anche separabile, disimpegno, 3 camere da letto di cui la matrimoniale servita da balcone, bagno + secondo bagno lavanderia. Nell'interrato box doppio in larghezza e cantina/taverna da 20mq venduta al rustico ma con le predisposizioni per la sua successiva finitura. L'appartamento è inoltre dotato di giardino privato da circa 107mq. Prezzo 335.000€ Appartamento 4 piano primo sud-ovest (VENDUTO): ampio e luminoso soggiorno con accesso a terrazzo coperto e vivibile, cucina a vista anche separabile, disimpegno, 3 camere da letto […]




