Valutazione immobiliare indipendente, accurata e gratuita
Casa indipendente in vendita a Villa di Serio a 180.000 € (cod.6517a45a)
Caasa non ha sufficienti informazioni per commentare la casa indipendente in vendita a Villa di Serio - 6517a45a.
Analisi immobiliare
I dati in posseso di Caasa per quest'immobile sono insufficienti, inaffidabili o contraddittori per proporre un'analisi attendibile.
Mercato immobiliare a Villa di Serio
Per quanto riguarda più in generale il comune di Villa di Serio, sono presenti al momento più di cinquanta annunci per
case indipendenti in vendita (meno dell'1% dell'intera provincia) .
Possiamo inoltre considerare che in tutto il comune negli ultimi 6 mesi, i prezzi per case indipendenti in vendita sono
in deciso calo (-8,18%).
NOVITÀ Il risultato che vedi dipende dai dati che siamo riusciti ad estrarre dall'annuncio: ottieni una stima più accuranta di questo immobile, inserendo dati più precisi.
N.B. L'Opinione di Caasa® è un servizio sperimentale realizzato tramite tecniche di Intelligenza Artificiale, fornito senza alcuna garanzia di correttezza e completezza. Leggi il disclaimer o segnalaci un problema.
IMMAGINI
IN SINTESI
PROPOSTO DA:
Agenzia Immobiliare Giuseppe Sammarelli
DESCRIZIONE
da ristrutturare con posto auto con cantina con terrazza da ristrutturare con balcone con ascensore con angolo cottura
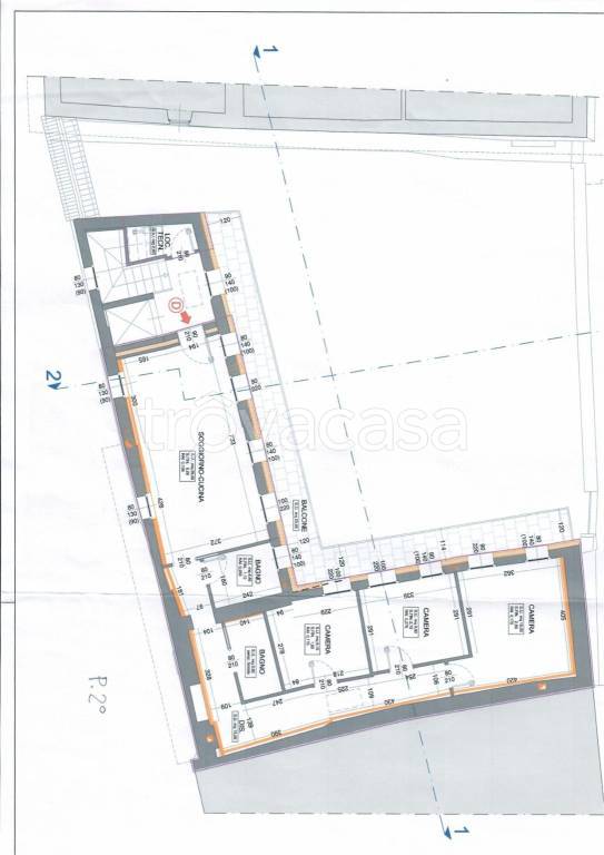
Proponiamo in vendita nel centro di Villa di Serio un cascinale rustico da ristrutturare, ideale per chi desidera realizzare più unità abitative o un progetto residenziale su misura. L’immobile dispone di progetto già approvato, con concessione edilizia e oneri pagati, che consente l’avvio immediato dei lavori. Il progetto prevede circa 120 mq per piano e la seguente distribuzione degli spazi: Piano terra: vano scala con ascensore, due bilocali composti da soggiorno con angolo cottura, bagno e camera matrimoniale. Primo piano: appartamento con soggiorno con angolo cottura, tre camere da letto, bagno, ripostiglio e balcone. Secondo piano: appartamento con soggiorno con angolo cottura, tre camere da letto, due bagni e balcone. Piano sottotetto: ampio spazio a uso ripostiglio. Completano la proprietà posti auto esterni, comodi e facilmente accessibili. La posizione centrale, la versatilità del progetto e la possibilità di iniziare subito la ristrutturazione rendono questa proposta particolarmente interessante sia per investitori sia per chi cerca un immobile da personalizzare completamente

