Valutazione immobiliare indipendente, accurata e gratuita
Locale commerciale in vendita a Verdello a 417.863 € (cod.6509453c)
Caasa non ha sufficienti informazioni per commentare il locale commerciale in vendita a Verdello - 6509453c.
Analisi immobiliare
I dati in posseso di Caasa per quest'immobile sono insufficienti, inaffidabili o contraddittori per proporre un'analisi attendibile.
Mercato immobiliare a Verdello
Per quanto riguarda più in generale il comune di Verdello, sono presenti al momento più di venti annunci per
locali commerciali in vendita (meno del 5% dell'intera provincia) .
NOVITÀ Il risultato che vedi dipende dai dati che siamo riusciti ad estrarre dall'annuncio: ottieni una stima più accuranta di questo immobile, inserendo dati più precisi.
N.B. L'Opinione di Caasa® è un servizio sperimentale realizzato tramite tecniche di Intelligenza Artificiale, fornito senza alcuna garanzia di correttezza e completezza. Leggi il disclaimer o segnalaci un problema.
IMMAGINI
IN SINTESI
PROPOSTO DA:
Case all'Asta
DESCRIZIONE
di nuova costruzione con giardino di nuova costruzione in asta giudiziaria
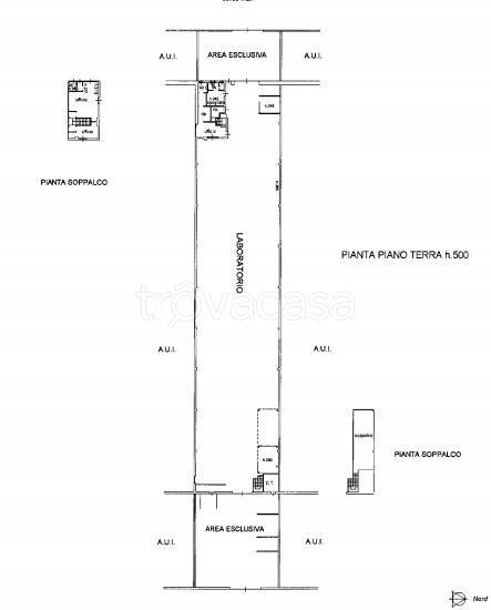
Capannone al piano terra con area esterna di circa 400 mq. Superficie coperta di circa 1.100 mq. All’interno uffici di circa 110 mq, composti da tre locali e bagno al piano terra. Due locali e bagno al piano superiore. Nessun costo di iscrizione con […]
