Valutazione immobiliare indipendente, accurata e gratuita
Capannone in vendita ad Urgnano (cod.651ea841)
Caasa non ha sufficienti informazioni per commentare il capannone in vendita ad Urgnano - 651ea841.
Analisi immobiliare
I dati in posseso di Caasa per quest'immobile sono insufficienti, inaffidabili o contraddittori per proporre un'analisi attendibile.
Mercato immobiliare ad Urgnano
Per quanto riguarda più in generale il comune di Urgnano, sono presenti al momento più di venti annunci per
capannoni in vendita (meno del 5% dell'intera provincia)
e il maggior numero di annunci per questa tipologia sono relativi alla zona di Basella.
Vedi altre informazioni direttamente su
Mercato-Immobiliare.info
NOVITÀ Il risultato che vedi dipende dai dati che siamo riusciti ad estrarre dall'annuncio: ottieni una stima più accuranta di questo immobile, inserendo dati più precisi.
N.B. L'Opinione di Caasa® è un servizio sperimentale realizzato tramite tecniche di Intelligenza Artificiale, fornito senza alcuna garanzia di correttezza e completezza. Leggi il disclaimer o segnalaci un problema.
IMMAGINI
IN SINTESI
PROPOSTO DA:
Affiliato Tecnorete: INDUSTRIALE TREVIGLIO SRL
DESCRIZIONE
di nuova costruzione di nuova costruzione
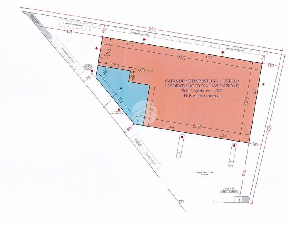
COSA SAPERE DELL'IMMOBILE PER INFORMAZIONI ED APPUNTAMENTI CHIAMA 035.314.938 Il capannone proposto in vendita ha una superficie di circa 5.000 metri quadrati e possiede ulteriori 5.000 metri quadri di area esterna esclusiva. DESCRIZIONE E PARTICOLARITA' Il capannone misura circa 5.000 metri quadrati ed è situato al piano terra. La soluzione si sviluppa lungo due campate, ha un’altezza di 8,50 metri, con altezza sottotrave di 8,50 metri. Il complesso è nuovo ed è personalizzabile e sviluppato secondo le richieste dell'acquirente. La proprietà è interamente recintata e possiede ulteriori 5.000 metri quadrati di area esterna esclusiva. Le fotografie del presente annuncio sono state create con l’aiuto dell’intelligenza artificiale. UBICAZIONE E CONTESTO Il complesso è ubicato nella zona industriale del Comune di Urgnano, a pochi minuti di distanza dalla Strada Provinciale SP11, la quale collega il paese ai Comuni limitrofi. In aggiunta, dista circa quattro chilometri dal casello autostradale A35 di Romano di Lombardia

