Valutazione immobiliare indipendente, accurata e gratuita
Appartamento in vendita a Terno d'Isola a 325.000 € (cod.64dbfad9)
Caasa non ha sufficienti informazioni per commentare l'appartamento in vendita a Terno d'Isola - 64dbfad9.
Analisi immobiliare
I dati in posseso di Caasa per quest'immobile sono insufficienti, inaffidabili o contraddittori per proporre un'analisi attendibile.
Mercato immobiliare a Terno d'Isola
Per quanto riguarda più in generale il comune di Terno d'Isola, sono presenti al momento più di cento annunci per
appartamenti in vendita (meno dell'1% dell'intera provincia) .
Relativamente alla dinamica dei prezzi, possiamo dire che negli ultimi 6 mesi i prezzi medi in tutto il comune per appartamenti in vendita sono
in forte aumento (+16,92%).
NOVITÀ Il risultato che vedi dipende dai dati che siamo riusciti ad estrarre dall'annuncio: ottieni una stima più accuranta di questo immobile, inserendo dati più precisi.
N.B. L'Opinione di Caasa® è un servizio sperimentale realizzato tramite tecniche di Intelligenza Artificiale, fornito senza alcuna garanzia di correttezza e completezza. Leggi il disclaimer o segnalaci un problema.
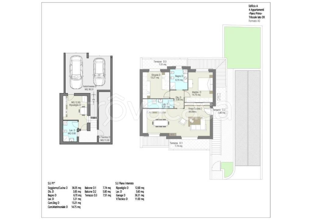
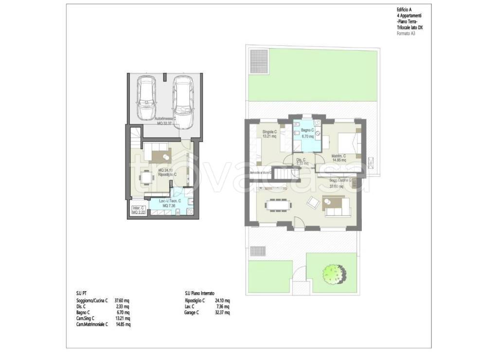
IMMAGINI
IN SINTESI
DESCRIZIONE
di nuova costruzione con posto auto con giardino con terrazza con garage con balcone di nuova costruzione con cucina abitabile con termocondizionamento
In nuova ed elegante palazzina di sole 4 unità in costruzione con consegna prevista novembre 2025, proponiamo NUOVI GRANDI TRILOCALI in con INGRESSO INDIPENDENTE, GIARDINO PRIVATO, TAVERNA, LAVANDERIA e BOX DOPPIO IN LARGHEZZA. Tutto quello che cerchi! Nessuna spesa condominiale ! Ampia possibilità di personalizzazione finiture interne! SOLUZIONI DISPONIBILI : - ULTIMO TRILOCALE PIANO TERRA con INGRESSO INDIPENDENTE e GIARDINO PRIVATO, composto internamente da: Grande zona living open-space con ampia vetrata e cucina abitabile con uscita sul giardino sul fronte, disimpegno che conduce alla zona notte con due camere da letto con uscita sul giardino sul retro e bagno. La SCALA INTERNA ci collega a piano interrato dove ci accoglie la TAVERNA, la LAVANDERIA, entrambe con accesso a intercapedine, ed il comodo BOX DOPPIO IN LARGHEZZA. - TRILOCALE PIANO PRIMO con INGRESSO INDIPENDENTE e GIARDINO PRIVATO al piano terra, composto internamente da: Grande zona living open-space con ampia vetrata con uscita sul balcone e cucina abitabile, disimpegno che conduce alla zona notte con due camere da letto, doppi servizi e balcone nella zona notte. La SCALA ESCLUSIVA ci collega a piano interrato dove ci accoglie la TAVERNA, la LAVANDERIA, ed il comodo BOX DOPPIO IN LARGHEZZA. Edificio GAS-FREE con piani cottura ad induzione, riscaldamento a pavimento in pompa di calore, impianto fotovoltaico, ventilazione meccanica controllata, isolamento a cappotto e predisposizione di antifurto e di climatizzazione sono solo alcune delle caratteristiche di questa pregevole soluzione. Con eleganti rivestimenti in pietra di Credaro, l' immobile si trova in posizione invidiabile e comodissima, in nuova zona residenziale, centrale e tranquilla, nelle vicinanze dall’ asse interurbano che collega a Bergamo in pochi minuti. Allacciamenti ed accatastamenti ad € 10.000 CHIAMACI PER VISIONARLA

