Valutazione immobiliare indipendente, accurata e gratuita
Casa indipendente in vendita a Spirano a 315.000 € (cod.65726177)
Caasa non ha sufficienti informazioni per commentare la casa indipendente in vendita a Spirano - 65726177.
Analisi immobiliare
I dati in posseso di Caasa per quest'immobile sono insufficienti, inaffidabili o contraddittori per proporre un'analisi attendibile.
Mercato immobiliare a Spirano
Per quanto riguarda più in generale il comune di Spirano, sono presenti al momento più di cinquanta annunci per
case indipendenti in vendita (meno dell'1% dell'intera provincia) .
La dinamica dei prezzi in tutto il comune mostra che negli ultimi 6 mesi, i prezzi per case indipendenti in vendita sono
in forte aumento (+15,55%).
NOVITÀ Il risultato che vedi dipende dai dati che siamo riusciti ad estrarre dall'annuncio: ottieni una stima più accuranta di questo immobile, inserendo dati più precisi.
N.B. L'Opinione di Caasa® è un servizio sperimentale realizzato tramite tecniche di Intelligenza Artificiale, fornito senza alcuna garanzia di correttezza e completezza. Leggi il disclaimer o segnalaci un problema.
IMMAGINI
IN SINTESI
PROPOSTO DA:
Studio Casa Boltiere
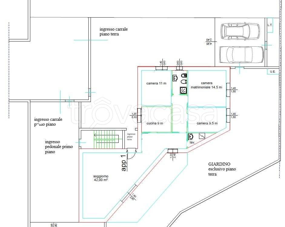
DESCRIZIONE
di nuova costruzione con giardino di nuova costruzione
Proponiamo in vendita appartamento al PIANO TERRA inserito in VILLA SINGOLA di nuova realizzazione, caratterizzato da ingresso completamente privato e giardino esclusivo di circa 200 mq. La soluzione si distingue per la totale indipendenza: ogni unità abitativa è autonoma sotto ogni profilo, dall’ingresso carrale a quello pedonale, garantendo privacy e assenza di parti comuni. Gli ambienti interni, come visibile dalle immagini, sono ampi, razionalmente distribuiti e particolarmente luminosi, ideali per chi desidera vivere in spazi generosi, ariosi e funzionali. Il soggiorno si sviluppa in una metratura importante, perfetta per una zona living di rappresentanza, mentre la zona notte offre camere di dimensioni confortevoli. Il giardino esclusivo, di ampia metratura, incornicia l’abitazione e rappresenta un vero valore aggiunto: spazio ideale per area relax, zona pranzo esterna o eventuale piscina fuori terra. Pur essendo presente un appartamento al piano superiore, le due unità risultano completamente indipendenti, senza condivisione di accessi o spazi esterni. Soluzione ideale per chi cerca: indipendenza paragonabile alla villa singola, comfort abitativo moderno, ampi spazi interni ed esterni, nuova costruzione con elevati standard qualitativi Per maggiori informazioni, non esitate a contattarci: Studio Casa Verdello Via Donizetti, 9 Tel. 035/87.26.05 -349/83.32.945 - verdello@studiocasa.it Perché Vendere e Comprare con noi è tutta un'altra cosa...... Per scoprire tutte le nostre proposte visita il sito: www.studiocasaverdello.it

