Valutazione immobiliare indipendente, accurata e gratuita
Appartamento in vendita a San Giovanni Bianco a 14.512 € (cod.654abe4d)
Caasa non ha sufficienti informazioni per commentare l'appartamento in vendita a San Giovanni Bianco - 654abe4d.
Analisi immobiliare
I dati in posseso di Caasa per quest'immobile sono insufficienti, inaffidabili o contraddittori per proporre un'analisi attendibile.
Mercato immobiliare a San Giovanni Bianco
Per quanto riguarda più in generale il comune di San Giovanni Bianco, sono presenti al momento più di 200 annunci per
appartamenti in vendita (meno del 5% dell'intera provincia)
e il maggior numero di annunci per questa tipologia sono relativi alla zona di Cornalita.
Relativamente alla dinamica dei prezzi, possiamo dire che negli ultimi 6 mesi i prezzi medi in tutto il comune per appartamenti in vendita sono
sostanzialmente stabili (-0,46%).
NOVITÀ Il risultato che vedi dipende dai dati che siamo riusciti ad estrarre dall'annuncio: ottieni una stima più accuranta di questo immobile, inserendo dati più precisi.
N.B. L'Opinione di Caasa® è un servizio sperimentale realizzato tramite tecniche di Intelligenza Artificiale, fornito senza alcuna garanzia di correttezza e completezza. Leggi il disclaimer o segnalaci un problema.
IMMAGINI
IN SINTESI
PROPOSTO DA:
Case all'Asta
DESCRIZIONE
di recente costruzione in asta giudiziaria con giardino di recente costruzione con cortile
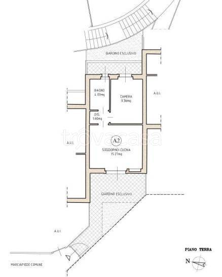
Appartamento al piano terra con accesso pedonale da scalinata e corsello esterno. Composto da soggiorno/cucina, disimpegno, camera da letto e bagno. Giardino sul fronte ingresso e ulteriore cortile/giardino sul lato opposto. Nessun costo di iscrizion […]
