Valutazione immobiliare indipendente, accurata e gratuita
Appartamento in vendita a Romano di Lombardia a 65.250 € (cod.654e2f7b)
Caasa non ha sufficienti informazioni per commentare l'appartamento in vendita a Romano di Lombardia - 654e2f7b.
Analisi immobiliare
I dati in posseso di Caasa per quest'immobile sono insufficienti, inaffidabili o contraddittori per proporre un'analisi attendibile.
Mercato immobiliare a Romano di Lombardia
Per quanto riguarda più in generale la città di Romano di Lombardia, sono presenti al momento più di 300 annunci per
appartamenti in vendita (meno del 5% dell'intera provincia) .
La dinamica dei prezzi in tutta la città mostra che negli ultimi 6 mesi, i prezzi per appartamenti in vendita sono
in sostanziale aumento (+5,30%).
NOVITÀ Il risultato che vedi dipende dai dati che siamo riusciti ad estrarre dall'annuncio: ottieni una stima più accuranta di questo immobile, inserendo dati più precisi.
N.B. L'Opinione di Caasa® è un servizio sperimentale realizzato tramite tecniche di Intelligenza Artificiale, fornito senza alcuna garanzia di correttezza e completezza. Leggi il disclaimer o segnalaci un problema.
IMMAGINI
IN SINTESI
DESCRIZIONE
con posto auto con giardino con cantina in asta giudiziaria
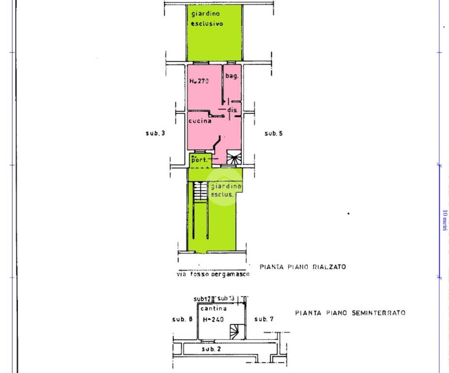
Proponiamo in vendita, tramite asta giudiziaria, appartamento bilocale situato al piano rialzato, dotato di giardino esclusivo. L’accesso avviene tramite cancellino pedonale indipendente che, attraversando la porzione di giardino privato, conduce all […]
