Valutazione immobiliare indipendente, accurata e gratuita
Appartamento in vendita a Pontirolo Nuovo in zona Fornasotto a 290.000 € (cod.652d4f5e)
Caasa non ha sufficienti informazioni per commentare l'appartamento a Pontirolo Nuovo in zona Fornasotto - 652d4f5e.
Analisi immobiliare
I dati in posseso di Caasa per quest'immobile sono insufficienti, inaffidabili o contraddittori per proporre un'analisi attendibile.
Mercato immobiliare a Pontirolo Nuovo
Per quanto riguarda più in generale il comune di Pontirolo Nuovo, sono presenti al momento più di cinquanta annunci per
appartamenti in vendita (meno dell'1% dell'intera provincia) .
Per quanto riguarda la richiesta media in zona Fornasotto, dove sorge l'appartamento, essa è pari a circa
1.580 €/m² per appartamenti in vendita.
Possiamo inoltre considerare che in tutto il comune negli ultimi 6 mesi, i prezzi per appartamenti in vendita sono
in deciso aumento (+8,74%).
NOVITÀ Il risultato che vedi dipende dai dati che siamo riusciti ad estrarre dall'annuncio: ottieni una stima più accuranta di questo immobile, inserendo dati più precisi.
N.B. L'Opinione di Caasa® è un servizio sperimentale realizzato tramite tecniche di Intelligenza Artificiale, fornito senza alcuna garanzia di correttezza e completezza. Leggi il disclaimer o segnalaci un problema.
IMMAGINI
IN SINTESI
PROPOSTO DA:
L'IMMOBILE BERGAMO S.A.S. DI BRIEDA RENATO & C.
VIA FILIPPO CORRIDONI,49, Bergamo (BG)
Verificata da Caasa®
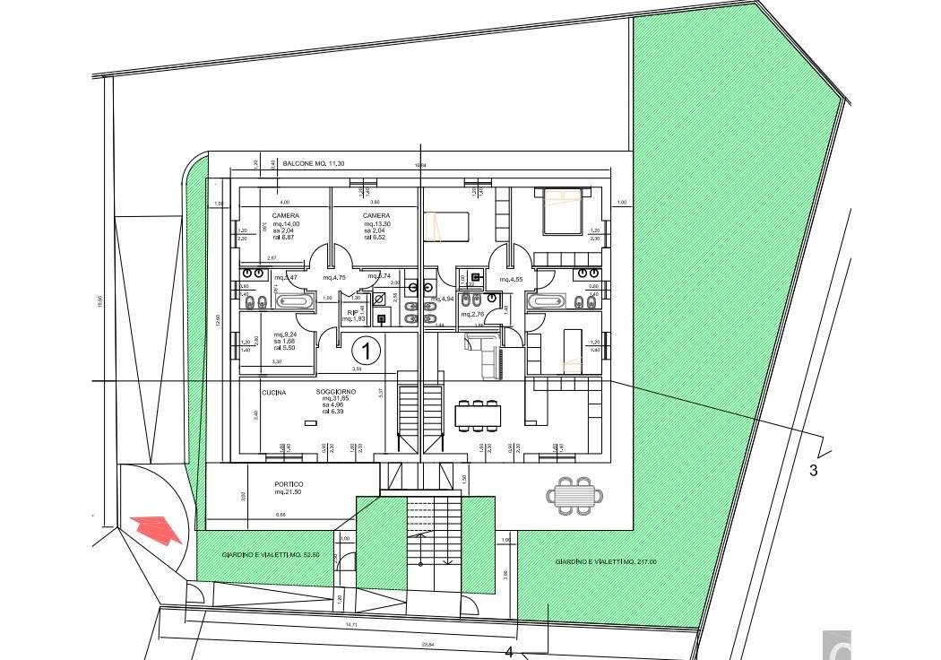
DESCRIZIONE
di nuova costruzione con giardino di nuova costruzione con cantina con garage con riscaldamento autonomo
Pontirolo Nuovo confine Brembate, prenotiamo nuovi appartamenti indipendenti. Nel verde in palazzina di sole 4 unità, costruzione dal taglio moderno dalle elevate prestazioni energetiche. Quadrilocale posto al piano terra con ingresso indipendente co […]
