Valutazione immobiliare indipendente, accurata e gratuita
Appartamento in vendita a Madone a 92.516 € (cod.6522d66b)
Caasa non ha sufficienti informazioni per commentare l'appartamento in vendita a Madone - 6522d66b.
Analisi immobiliare
I dati in posseso di Caasa per quest'immobile sono insufficienti, inaffidabili o contraddittori per proporre un'analisi attendibile.
Mercato immobiliare a Madone
Per quanto riguarda più in generale il comune di Madone, sono presenti al momento circa cento annunci per
appartamenti in vendita (meno dell'1% dell'intera provincia) .
La dinamica dei prezzi in tutto il comune mostra che negli ultimi 6 mesi, i prezzi per appartamenti in vendita sono
in forte aumento (+13,39%).
NOVITÀ Il risultato che vedi dipende dai dati che siamo riusciti ad estrarre dall'annuncio: ottieni una stima più accuranta di questo immobile, inserendo dati più precisi.
N.B. L'Opinione di Caasa® è un servizio sperimentale realizzato tramite tecniche di Intelligenza Artificiale, fornito senza alcuna garanzia di correttezza e completezza. Leggi il disclaimer o segnalaci un problema.
IMMAGINI
IN SINTESI
PROPOSTO DA:
Case all'Asta
DESCRIZIONE
di recente costruzione con posto auto in asta giudiziaria con cantina con garage con balcone di recente costruzione
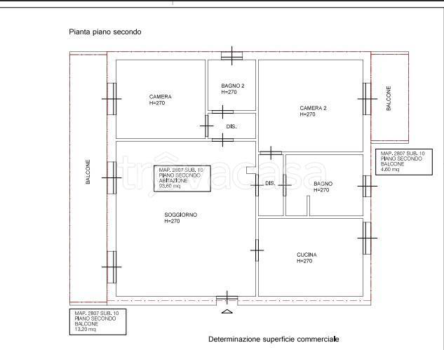
Trilocale al piano secondo. Composto da soggiorno, cucina, due camere e due bagni. L'appartamento ha triplo affaccio e due balconi (lato est e lato ovest). Inclusi un ripostiglio di 10 mq e una autorimessa (garage). Nessun costo di iscrizione con Cas […]
