Valutazione immobiliare indipendente, accurata e gratuita
Negozio in vendita a Covo a 117.750 € (cod.652f13ae)
Caasa non ha sufficienti informazioni per commentare il negozio in vendita a Covo - 652f13ae.
Analisi immobiliare
I dati in posseso di Caasa per quest'immobile sono insufficienti, inaffidabili o contraddittori per proporre un'analisi attendibile.
Mercato immobiliare a Covo
Per quanto riguarda più in generale il comune di Covo, sono presenti al momento più di venti annunci per
negozi in vendita (meno dell'1% dell'intera provincia) .
Vedi altre informazioni direttamente su
Mercato-Immobiliare.info
NOVITÀ Il risultato che vedi dipende dai dati che siamo riusciti ad estrarre dall'annuncio: ottieni una stima più accuranta di questo immobile, inserendo dati più precisi.
N.B. L'Opinione di Caasa® è un servizio sperimentale realizzato tramite tecniche di Intelligenza Artificiale, fornito senza alcuna garanzia di correttezza e completezza. Leggi il disclaimer o segnalaci un problema.
IMMAGINI
IN SINTESI
PROPOSTO DA:
Case all'Asta
DESCRIZIONE
di recente costruzione in asta giudiziaria con cortile con cantina di recente costruzione
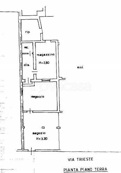
Unico lotto composto da due unità a uso commerciale. Il primo con locale vendita, magazzino, bagno, disimpegno e ripostiglio. Il secondo con locale vendita e ufficio. Accesso da fronte strada o tramite cortile di terzi, servitù da costituire. Nessun […]
